Colony design with nursing school private collage different wards inside plot and detail of septic tank plan layout DWG AutoCAD drawing
Description
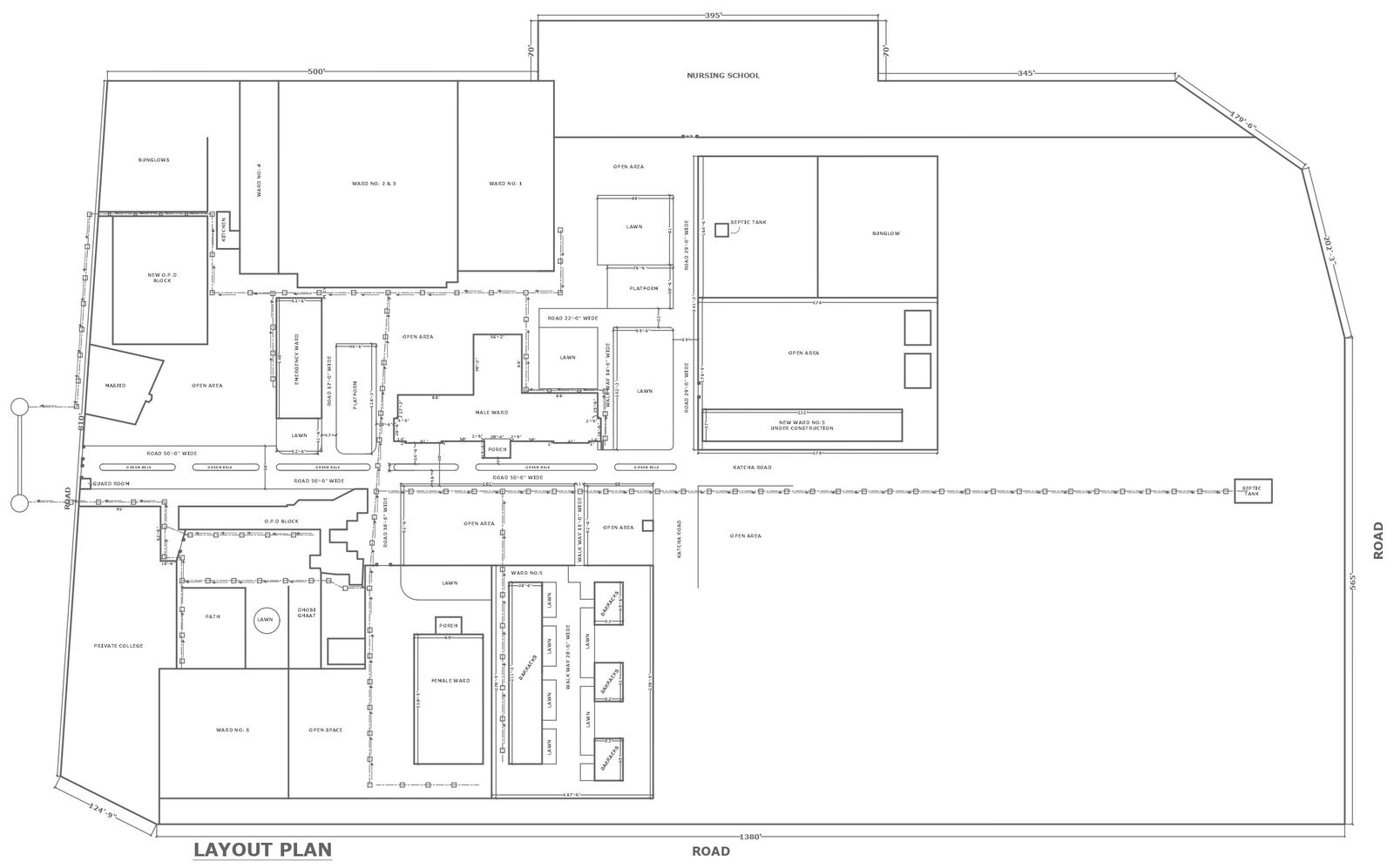
Immerse yourself in the visionary design of our colony, meticulously crafted to accommodate a nursing school, private college, and various wards within a spacious plot. Our detailed plan, section, and elevation in the DWG AutoCAD drawing showcase the thoughtful integration of essential elements such as furniture layout, space planning, and infrastructure design. The layout emphasizes functionality and efficiency while ensuring a harmonious blend with the surrounding environment. With careful consideration given to electric and plumbing design, water supply, and architectural aesthetics, our colony stands as a testament to modern urban planning and design principles. Explore the intricacies of our design, including the layout of septic tanks meticulously incorporated into the plan to ensure optimal sanitation and hygiene. Experience the epitome of urban living with our innovative and comprehensive colony design.
Uploaded by:

