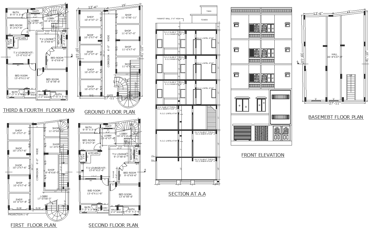
Recidencial and commercial spaces design in five storey apartment detail plan section and elevation design DWG AutoCAD drawing
Description
Discover the finely crafted residential and business areas within our carefully designed five-story apartment building. Our DWG AutoCAD drawing gives a thorough overview of the layout with its full sections, elevations, and plans.Every detail is meticulously studied to maximize utility and beauty, from plot details and site study to furniture arrangement and space design. The housing plan accommodates a range of demands by combining residential and commercial spaces in a cohesive manner.Our design guarantees smooth integration and efficiency with careful attention to water supply, façade architecture, and electrical and plumbing design. Architects, designers, and developers can use our drawing as a useful tool while conceptualizing a penthouse, villa, or apartment.
Uploaded by:

