2BHK apartment design on plot area of 2500sft detail layout plan of all floor DWG AutoCAD drawing
Description
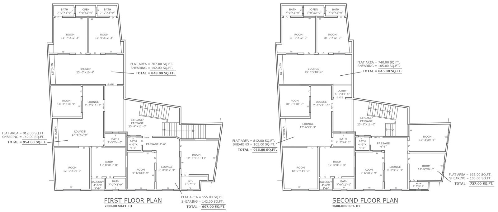
Discover the epitome of modern living with our meticulously crafted 2BHK apartment design on a spacious plot area of 2500 square feet. Our detailed layout plan, available in DWG AutoCAD drawing format, offers a comprehensive view of all floors. From the ground floor to the upper levels, each floor layout is thoughtfully designed to optimize space and enhance livability. Explore the intricacies of furniture placement, elevation details, and section layouts, meticulously crafted to ensure functionality and aesthetic appeal. Whether you're a homeowner looking for a comfortable abode or an investor seeking a lucrative property opportunity, our apartment design promises to exceed your expectations. With a focus on façade design, space planning, and urban aesthetics, our project stands as a testament to innovative architectural excellence. Unlock the potential of your living space with our DWG AutoCAD drawing.
Uploaded by:

