Mosque design detailed plan in area of 119715sqft DWG AutoCAD drawing

Mosque design detailed plan in area of 119715sqft  DWG AutoCAD drawing
Profile

Uploaded by:

Nilam

Description

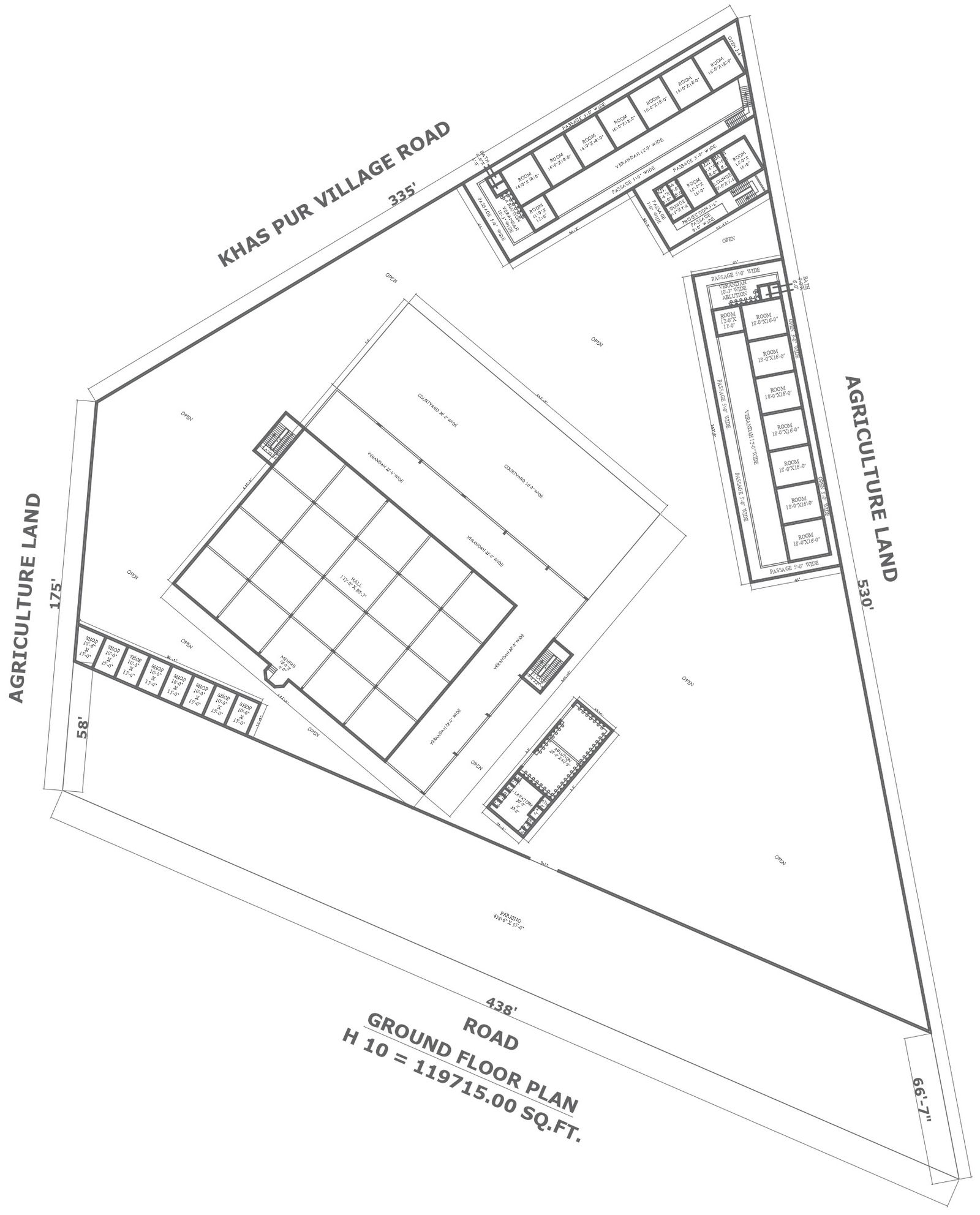
Embark on a spiritual journey with our meticulously designed mosque, spanning an expansive area of 119715 sqft. Our detailed DWG AutoCAD drawing encompasses every aspect of the mosque's design, from plot details and site analysis to furniture layout and elevation. With a focus on space planning and architectural integrity, our plan ensures optimal utilization of the space while creating a serene and welcoming atmosphere. From column details to section views, every element is carefully considered to enhance the functionality and aesthetic appeal of the mosque. Explore our AutoCAD files for precise 2D drawings that streamline the construction process and ensure accuracy in design implementation. Whether you're planning a mosque, penthouse, villa, or apartment, our design offers versatility to suit various housing schemes and urban settings. With our expertise in architectural drafting, your mosque will become a beacon of spirituality and community gathering.

 

Profile

Uploaded by:

Nilam

find Latest

Related Files