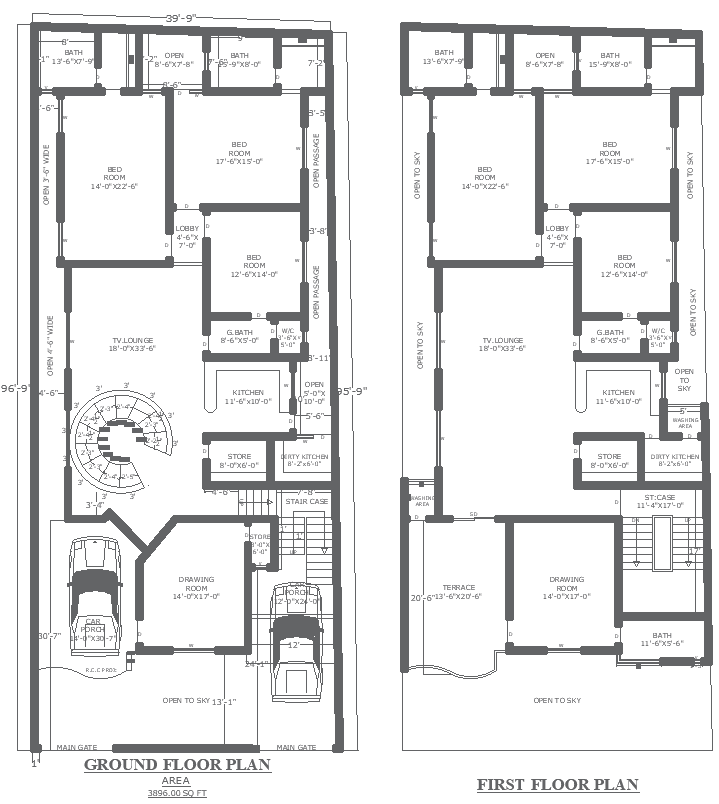
3bhk house plan with Circular staircase in area of 3896sqft detail DWG AutoCAD drawing
Description
Experience luxury living with our meticulously designed 3BHK house plan, spanning an expansive area of 3896 sqft, complete with a striking circular staircase detail. Our detailed DWG AutoCAD drawing encompasses plot details, site analysis, and precise space planning to optimize functionality and aesthetics. With a focus on practicality and architectural integrity, our plan provides seamless integration into any housing scheme or urban setting. From furniture layout to elevation and section details, every element is carefully considered to create a harmonious living environment. Explore our AutoCAD files for precise 2D drawings that streamline construction and enhance design accuracy. Whether you're planning a penthouse, villa, or apartment, our house plan offers versatility to suit various preferences. With our expertise in architectural drafting, your dream home with a circular staircase awaits, combining elegance and sophistication effortlessly.
Uploaded by:
