3bhk apartment design with detailed five floor plan section and elevation DWG autoCAD drawing
Description
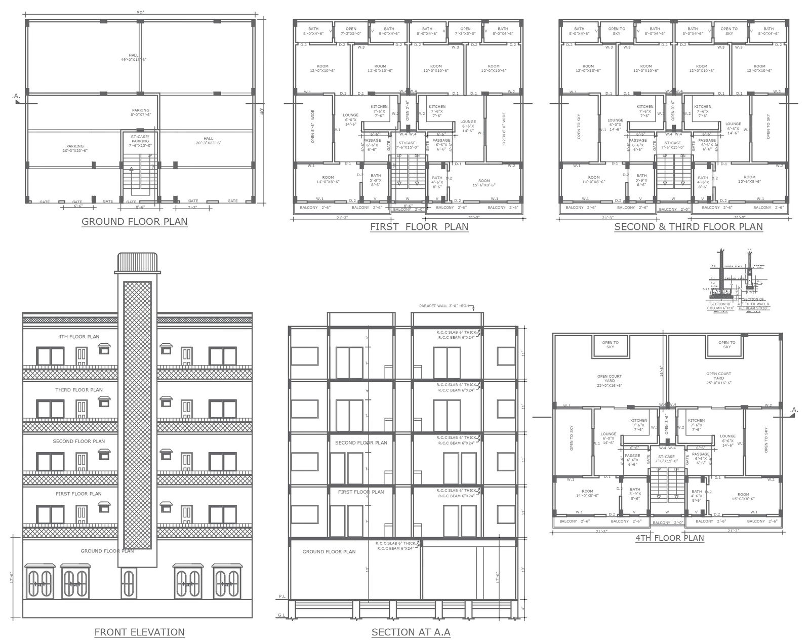
Discover the perfect blend of comfort and functionality with our meticulously designed 3BHK apartment, featuring detailed floor plans, sections, and elevations across five floors in DWG AutoCAD drawing format. Our design incorporates plot details, site analysis, and precise space planning to optimize living spaces in each apartment unit. From furniture layout to elevation and section details, every element is carefully considered to create a harmonious living environment. Whether you're considering a penthouse, villa, or apartment, our design caters to diverse housing preferences and lifestyles. Explore our AutoCAD files for precise 2D drawings that streamline construction and enhance design accuracy. With our expertise in architectural drafting, your dream of owning a stylish and functional 3BHK apartment is within reach. Enjoy the convenience and comfort of modern urban living in your new home.
Uploaded by:

