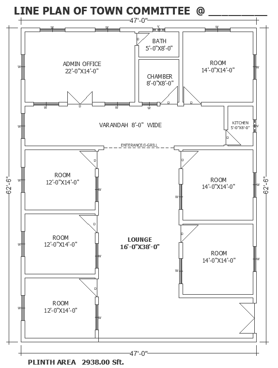
Town Committee Office Line Plan 47ft x 62.5ft DWG File
Description
Discover the intricately detailed DWG AutoCAD drawing showcasing the line plan of town community offices, situated on a plot measuring 47ft X 62.5ft. This drawing provides comprehensive insights into plot details, site analysis, furniture arrangement, elevation, and section views. With a focus on efficient space planning and urban development, our design caters to the needs of modern community office setups. From floor layout to column details, our CAD file offers a thorough blueprint for creating functional and aesthetically pleasing office spaces. Whether you're an architect, urban planner, or designer, this drawing serves as a valuable resource for your project. Download now to access precise and detailed blueprints for your town community office design endeavor.
File Type:
3d max
File Size:
702 KB
Category::
Urban Design
Sub Category::
Town Design And Planning
type:
Gold
Uploaded by:

