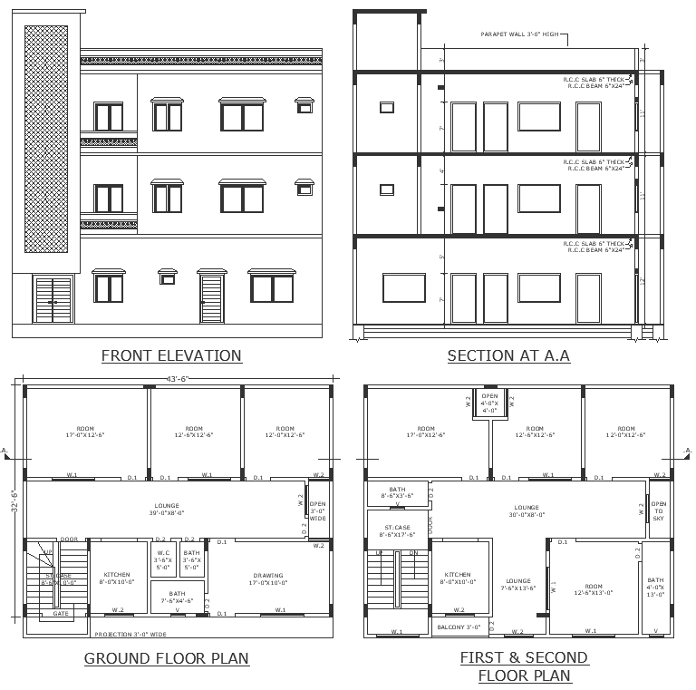
Three storey bungalow design with concept of 3bhk on every floor detailed floor plan section and elevation DWG autoCAD drawing
Description
Embrace luxurious living with our meticulously crafted three-storey bungalow design, featuring the innovative concept of a 3BHK on every floor. Our detailed floor plan section and elevation in DWG AutoCAD drawing format showcase the epitome of modern architectural excellence. From plot detail to site analysis, every aspect is meticulously considered to ensure optimal space utilization and functionality. With a focus on space planning and staircase design, our bungalow layout seamlessly integrates urban planning principles and housing schemes. The design boasts elegant features such as courtyards and varandahs, enhancing the overall aesthetic appeal and livability of each floor. Whether you're seeking a family home or an investment property, our three-storey bungalow design offers the perfect balance of sophistication and comfort. Explore our AutoCAD drawing to witness the embodiment of luxurious living.
Uploaded by:

