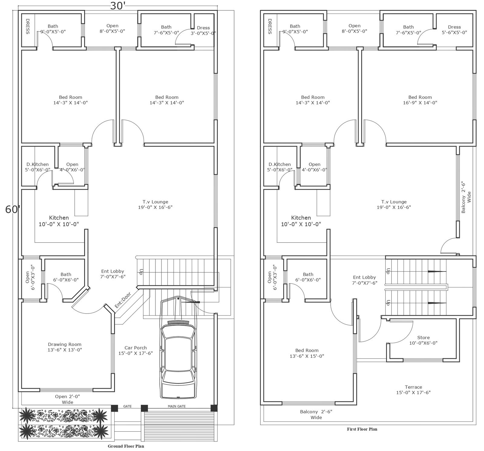
Five BHK morden house design on plot size of 30 X 60 ft detailed plan DWG autoCAD drawing
Description
Experience the epitome of modern luxury living with our meticulously designed five-bedroom house on a plot size of 30 X 60 ft, presented in detailed plan DWG AutoCAD drawings. Our design encapsulates every aspect of urban planning and architectural excellence, from plot details to comprehensive site analysis. Featuring spacious interiors and elegant design elements, our modern house boasts a thoughtfully planned floor layout, ensuring ample space for comfortable living. The staircase design adds a touch of sophistication, while the courtyard and varandah design create serene outdoor spaces for relaxation and entertainment. With meticulous attention to detail, including column and section details, our house design offers a perfect blend of functionality and opulence. Elevate your lifestyle with our luxurious living space design, tailored for those who appreciate the finer things in life. Explore the possibilities of modern living with our five BHK house design.
Uploaded by:

