Section details for different buildings like offices family wing worker building and swimming pool DWG autoCAD autoCAD
Description
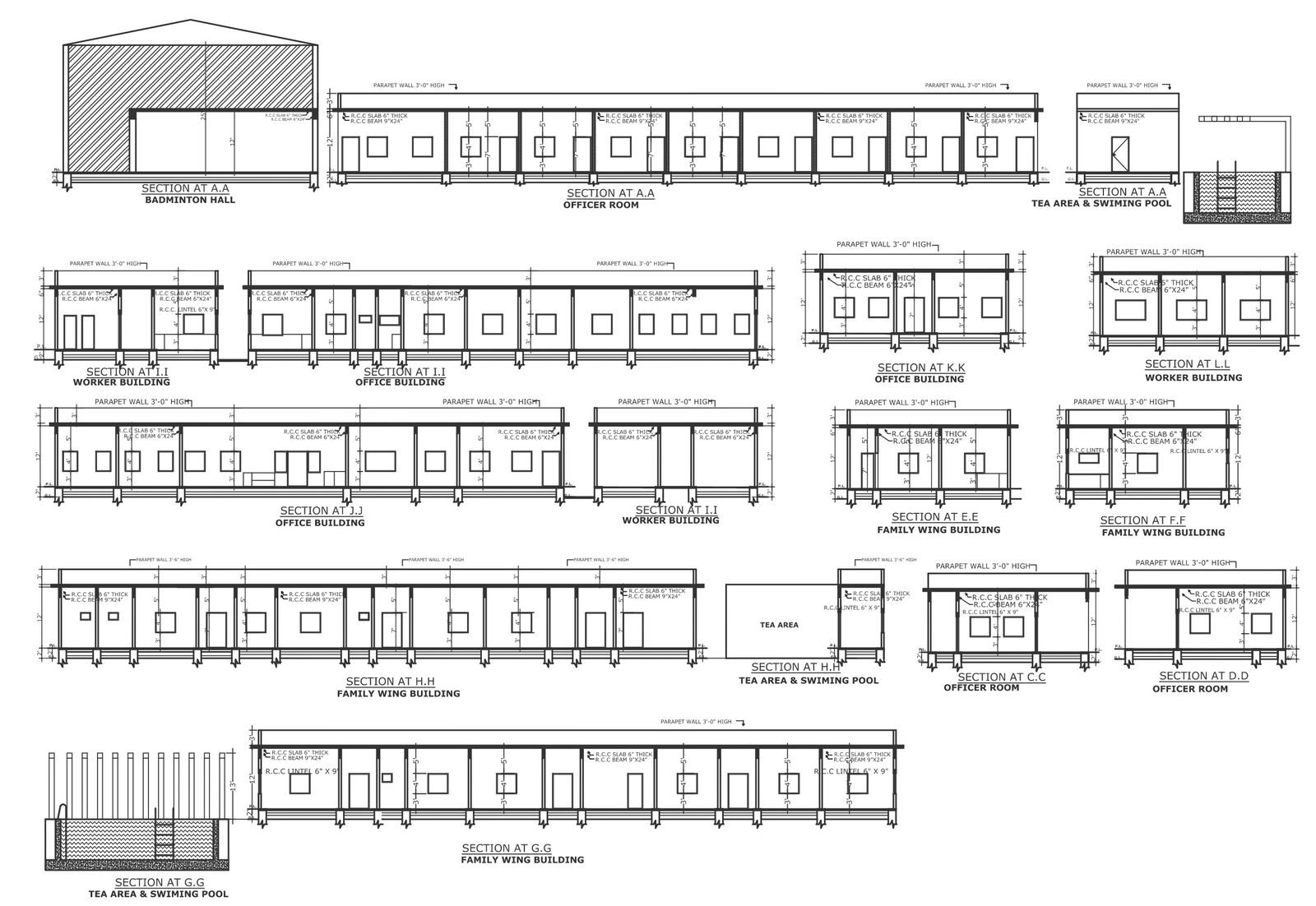
Explore the intricacies of architectural design with our comprehensive section details for various buildings, including offices, family wing, worker building, and swimming pool. Our DWG AutoCAD drawings provide a detailed insight into the plot layout, site analysis, elevation, and floor plan sections. From meticulous space planning to intricate staircase designs, our drawings showcase every aspect of urban planning and architectural detailing. Whether it's the serene courtyard design or the elegant varandahs, each element is meticulously crafted to enhance functionality and aesthetics. With a focus on column details, façade designs, and architecture details, our drawings offer valuable insights for professionals and enthusiasts alike. Dive into the world of luxurious living spaces, bungalow designs, villa layouts, and apartment plans, meticulously detailed in our DWG AutoCAD files. Experience the pinnacle of design excellence with our comprehensive section details, tailored to elevate every aspect of your project.
Uploaded by:

