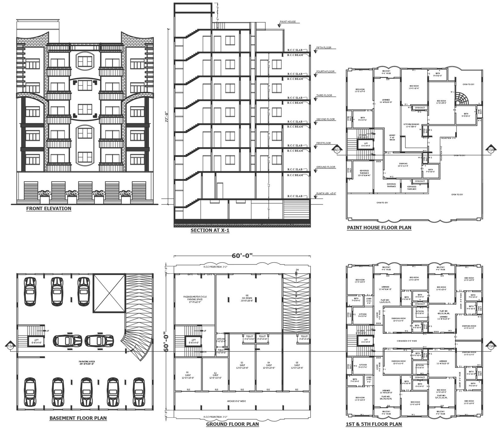
2 bhk apartment design with penthouse on upper floor on plot size 60 X60 ft detailed plan section and elevation DWG autoCAD drawing
Description
Experience modern living at its finest with our meticulously crafted 2 BHK apartment design, featuring a luxurious penthouse on the upper floor. Designed to perfection on a spacious plot measuring 60 x 60 ft, this detailed plan, section, and elevation in DWG AutoCAD format offer a comprehensive blueprint for your dream home. From plot details to site analysis, every aspect has been meticulously considered to optimize space and functionality. The design seamlessly integrates essential elements like space planning, staircase design, courtyard, and varandah, ensuring a harmonious living environment. With a focus on urban planning and architectural finesse, this apartment design caters to the discerning individual seeking elegance and comfort. Elevate your lifestyle with our thoughtfully curated floor layout, column details, and façade design, delivering unparalleled luxury and sophistication. Download our DWG AutoCAD drawing today and embark on the journey to your dream home.
Uploaded by:

