Unique exterior staircase wall design in low rise apartment detailed plan section and elevation DWG autoCAD drawing
Description
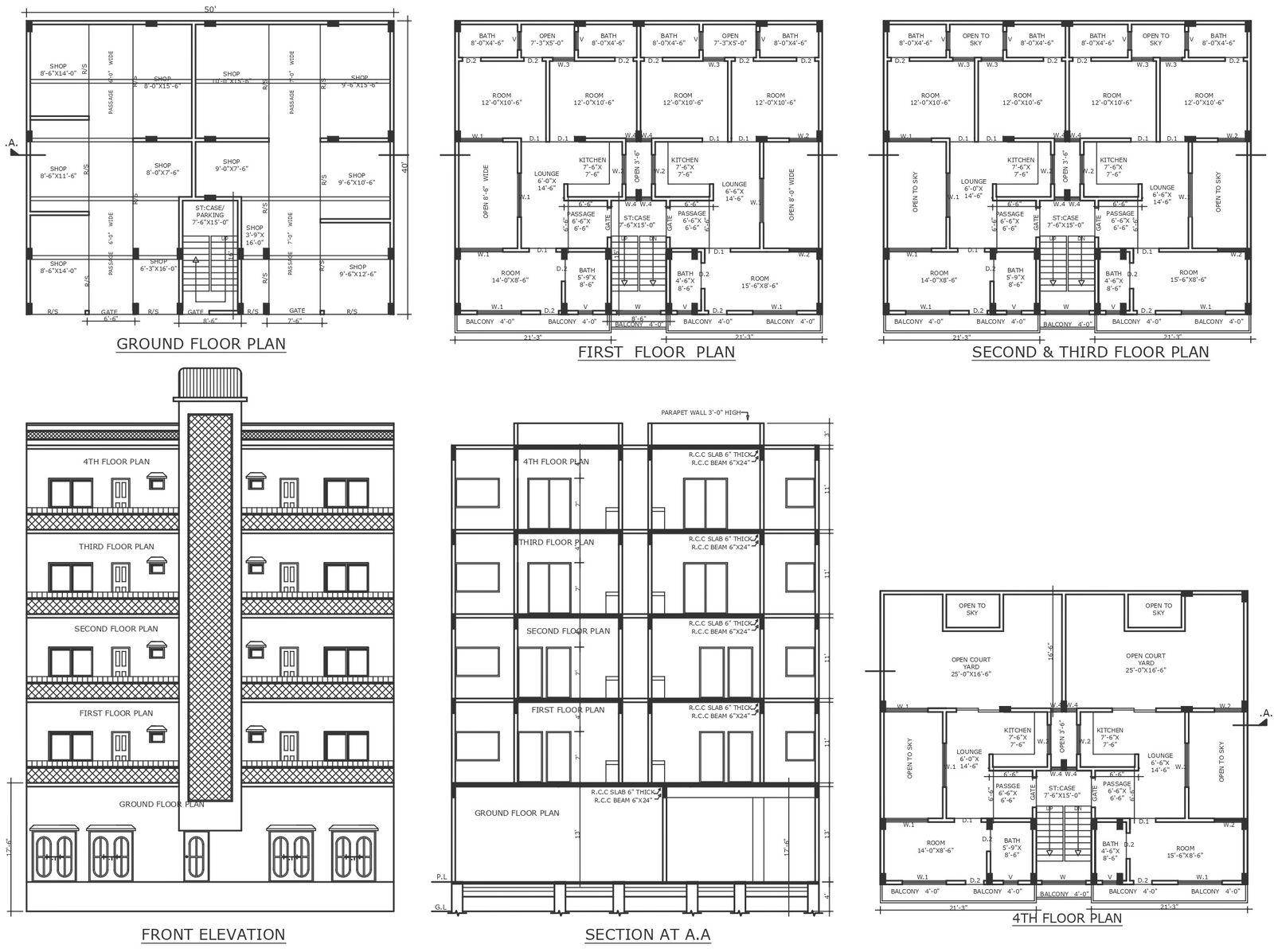
Elevate Your Apartment's Aesthetic Appeal with Our Unique Exterior Staircase Wall Design. Experience architectural innovation with our detailed plan, section, and elevation in DWG AutoCAD drawing format, showcasing a distinctive exterior staircase wall design for low-rise apartments. Our design seamlessly blends functionality with visual allure, offering a striking focal point for your residential space. From plot detail and site analysis to meticulous space planning and urban design principles, every aspect is meticulously crafted to enhance your living experience. Embrace the perfect harmony of form and function as you navigate through the thoughtfully designed staircase, adorned with captivating architectural details. With a focus on creating luxurious living spaces and enhancing the overall housing scheme, our design promises to transform your apartment into a haven of style and sophistication. Download our DWG AutoCAD drawing to embark on a journey towards architectural excellence.
Uploaded by:

