Elegant morden villa design detailed floor plan section and elevation DWG autoCAD drawing
Description
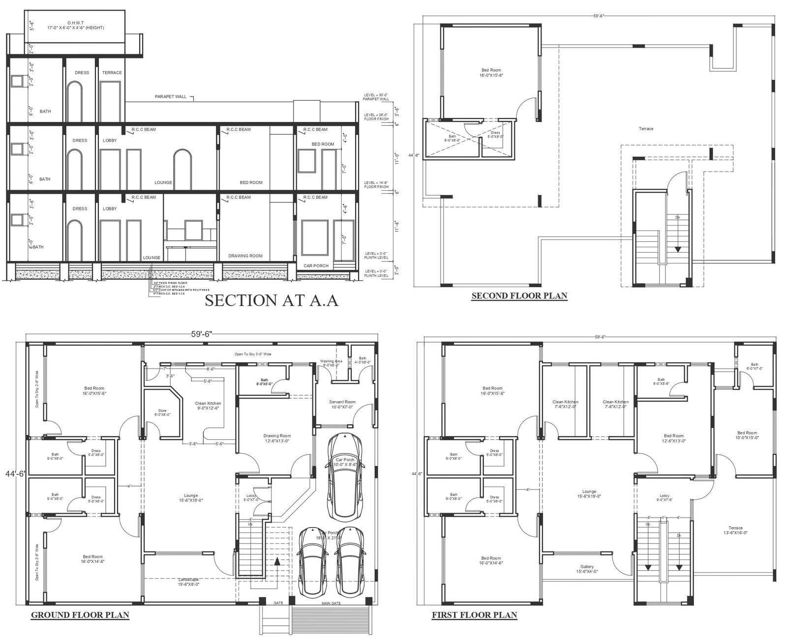
Experience the epitome of contemporary luxury living with our meticulously crafted modern villa design, complete with detailed floor plans, sections, and elevations in DWG AutoCAD format. Our design seamlessly integrates with plot details and site analysis, offering a harmonious blend of elegance and functionality. From spacious interiors to exquisite exterior features, every element is meticulously planned to enhance the living experience. Whether you're envisioning a serene courtyard or a stylish varandah, our design provides the perfect canvas for your dream home. Elevate your urban lifestyle with our thoughtfully curated housing scheme, designed for maximum comfort and convenience. Download our DWG AutoCAD drawing to embark on a journey of architectural excellence, and turn your vision of a luxurious villa into reality.
Uploaded by:

