Foundation plan column placing detailed layout DWG autoCAD drawing
Description
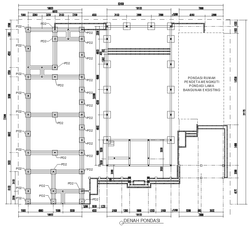
Our Foundation Plan Column Placing Detailed Layout in DWG AutoCAD format offers a meticulous blueprint for ensuring the structural integrity of your construction project. This drawing provides comprehensive guidance on the precise placement of columns within the foundation, crucial for distributing loads and supporting the entire structure effectively. With clear annotations and dimensions, our DWG file facilitates seamless communication between architects, engineers, and contractors, ensuring accurate implementation of the foundation design. From footing details to reinforcement specifications, every aspect is meticulously documented to meet industry standards and regulatory requirements. Whether you're embarking on a residential, commercial, or industrial project, our detailed foundation plan serves as a valuable resource for optimizing construction efficiency and durability. Download our DWG AutoCAD drawing to streamline the foundation phase and lay a solid groundwork for your building project.
Uploaded by:

