Floor plan detailed drawing for church DWG autoCAD drawing
Description
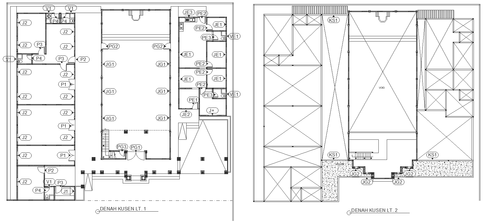
Discover the intricacies of church design with a detailed floor plan drawing in AutoCAD DWG format. This drawing offers a comprehensive view of the church's layout, emphasizing temple architecture and detailed church plans. Explore the nuances of beam sections, column sections, RCC structure, and steel structure details incorporated into the church floor plan. The drawing includes essential plot details, site analyses, and elevations, providing insights for optimized space planning, staircase design, courtyard layout, and varandah features. Ideal for architects, engineers, and designers, this AutoCAD file delivers precise floor layouts, column details, and section descriptions tailored to church design and temple architecture, facilitating the creation of sacred and functional spaces.
Uploaded by:

