Conference room elevation design with furniture details and section details dwg autocad drawing .
Description
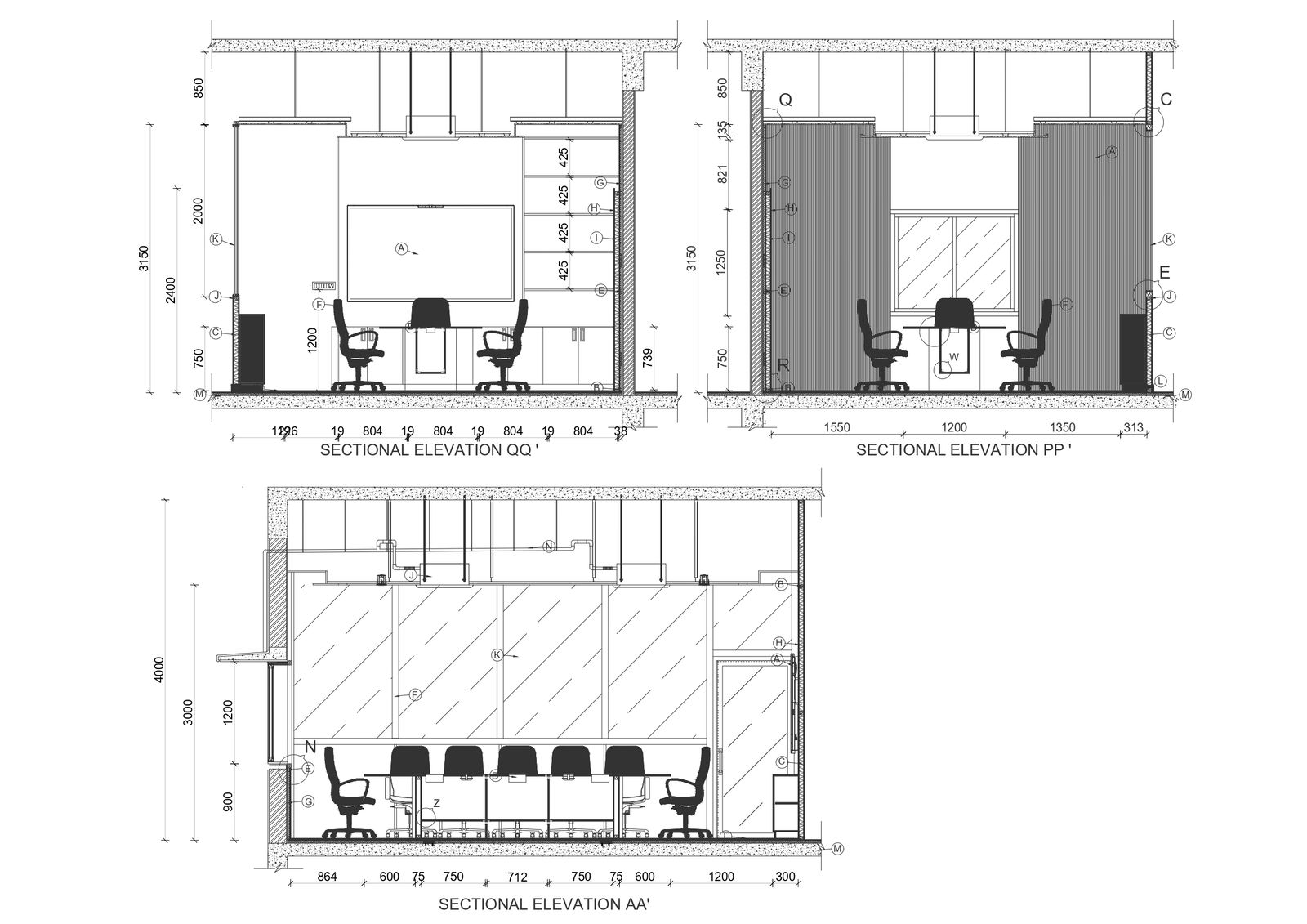
Explore our meticulously crafted conference room elevation design in our DWG AutoCAD drawing, featuring detailed furniture and section details. This drawing provides architects and interior designers with comprehensive insights into the layout and aesthetics of a conference room.With keywords like "conference table," "elevation," "section," and "furniture details," our drawing ensures easy navigation and access to essential information. Whether you're planning a corporate boardroom or a collaborative meeting space, this drawing offers valuable insights into furniture placement, layout optimization, and spatial arrangements.Download our DWG file to delve into the intricacies of conference room design, complete with furniture details and section views. Elevate your design projects with this comprehensive resource, designed to streamline the planning and execution process while ensuring a functional and aesthetically pleasing conference room environment.

Uploaded by:
Eiz
Luna

