Section and elevation details of washroom with tile detail DWG autoCAD drawing
Description
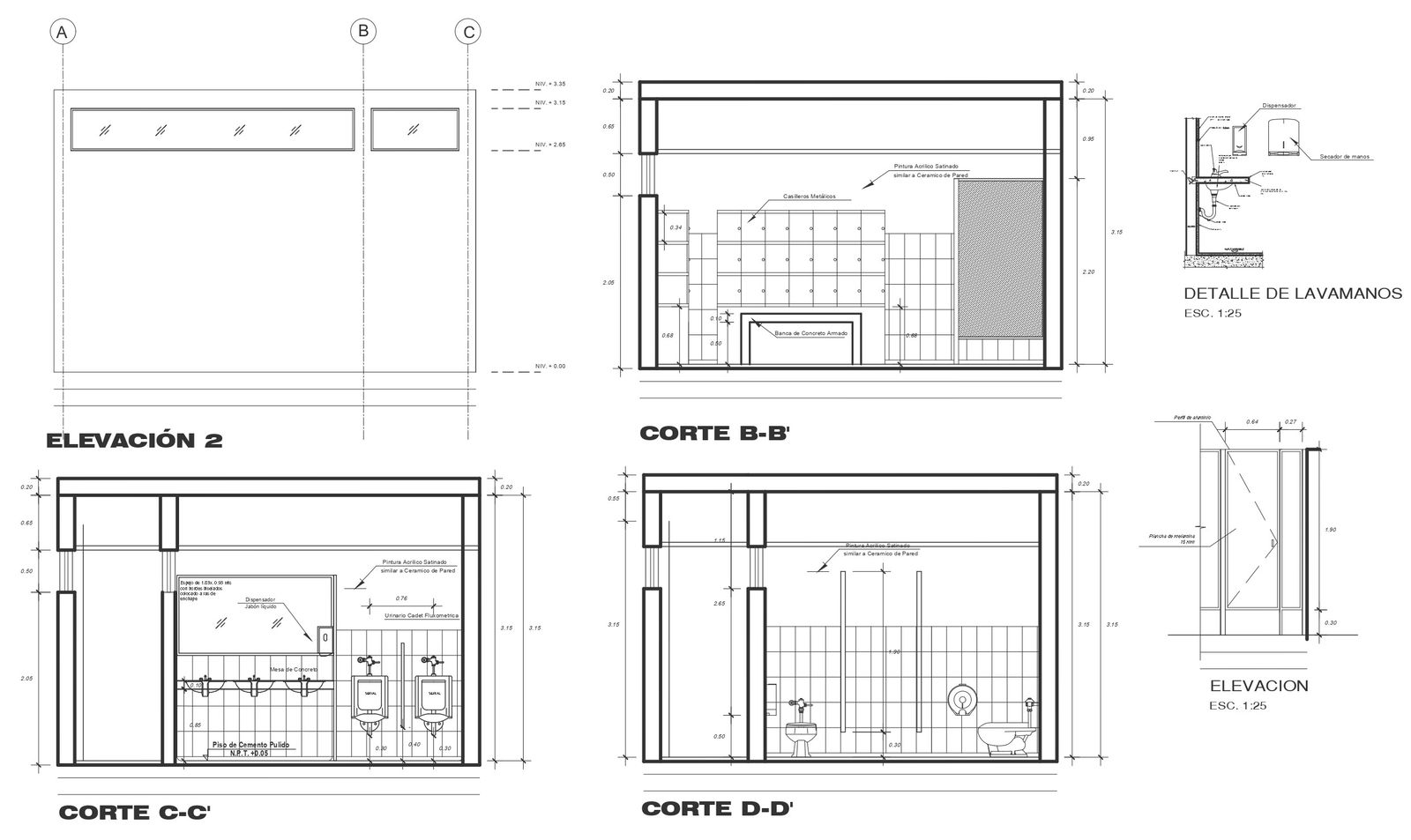
Explore the detailed section and elevation plans of a washroom, emphasizing tile details, depicted in this comprehensive AutoCAD drawing. This drawing provides valuable insights into toilet and washroom specifics, offering plumbing details, elevation views, and section details for effective space planning and layout. With a focus on construction and architectural specifics, this drawing includes comprehensive details for facade design, architecture, ceiling plans, and interior considerations. It provides essential information on beam and column details, foundation plans, footing specifics, and reinforcement details, crucial for washroom construction. Ideal for construction professionals and engineers, this drawing highlights the importance of accurate planning and detailing in restroom design and construction.
Uploaded by:

