Double storey house plan with four bedroom design DWG autoCAD drawing
Description
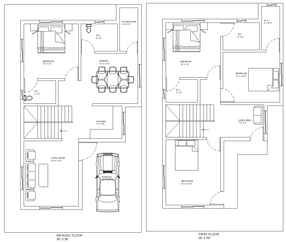
Explore a meticulously crafted double-storey house plan featuring a four-bedroom design through our detailed AutoCAD drawing. This DWG file unveils a comprehensive layout incorporating essential elements like kitchen details, staircase specifications, and innovative stair designs including sandwich stairs. Delve into elevation and section views for a thorough understanding of space planning and floor layout. Discover intricate column details, section specifics, and façade design insights for architectural inspiration. Unveil ceiling plans, interior design features, and construction details such as beam and column specifics, foundation plans, footing details, and reinforced concrete elements. This CAD file serves as a valuable resource for architects and designers, offering a wealth of information to optimize project efficiency and creativity. Access this AutoCAD drawing to elevate your design process with expertly crafted insights and detailed planning.
Uploaded by:

