40X30 ft house ground floor plan with furniture layout DWG autoCAD drawing
Description
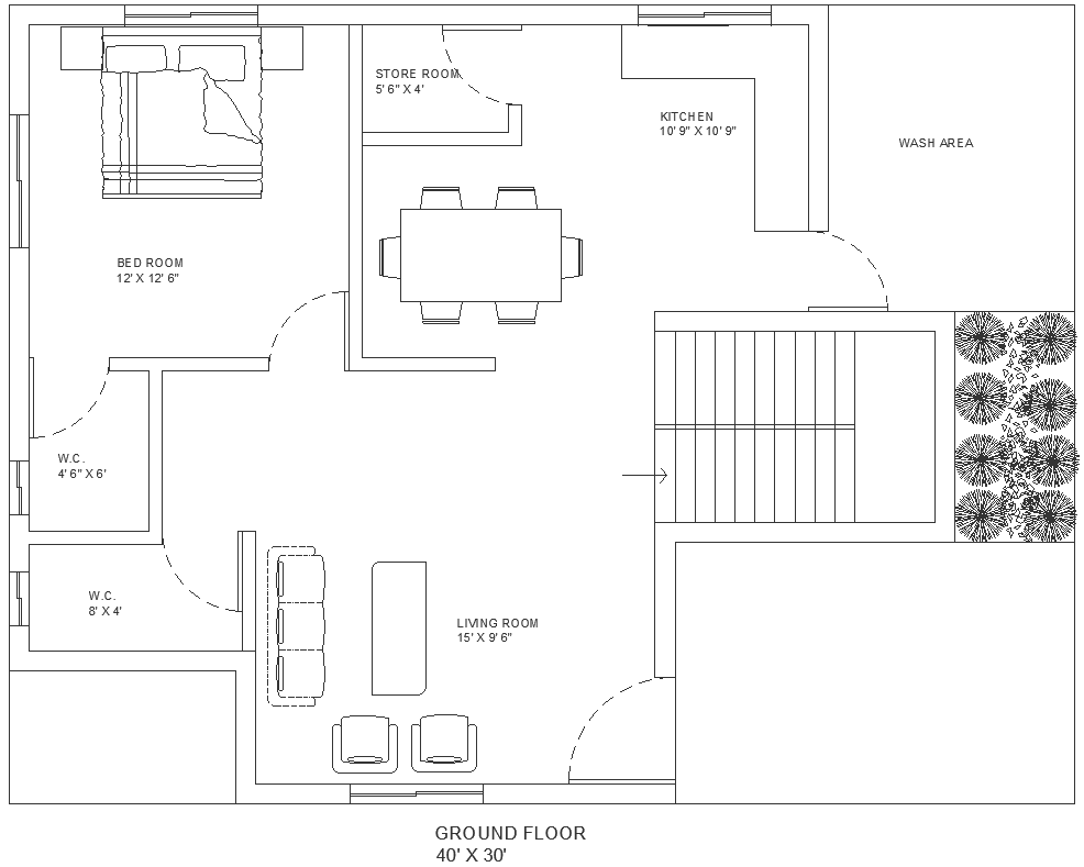
Discover the ideal 40x30 ft house ground floor plan complete with a detailed furniture layout in our AutoCAD drawing. This DWG file showcases a well-thought-out design with essential features like bedroom arrangements, kitchen specifics, and staircase details including innovative sandwich stairs. Explore elevation and section views for a comprehensive understanding of space planning and floor layout optimization. Dive into column specifics, section details, and façade design insights to inspire your architectural vision. Uncover ceiling plans, interior design elements, and construction details such as beam and column specifics, foundation plans, footing details, and reinforced concrete elements. This CAD file is a valuable resource for architects and designers seeking to optimize project efficiency and creativity. Access this AutoCAD drawing to streamline your design process and bring your dream house to life with expertly crafted insights and meticulous planning.
Uploaded by:

