Existing site development layout details dwg autocad drawing .
Description
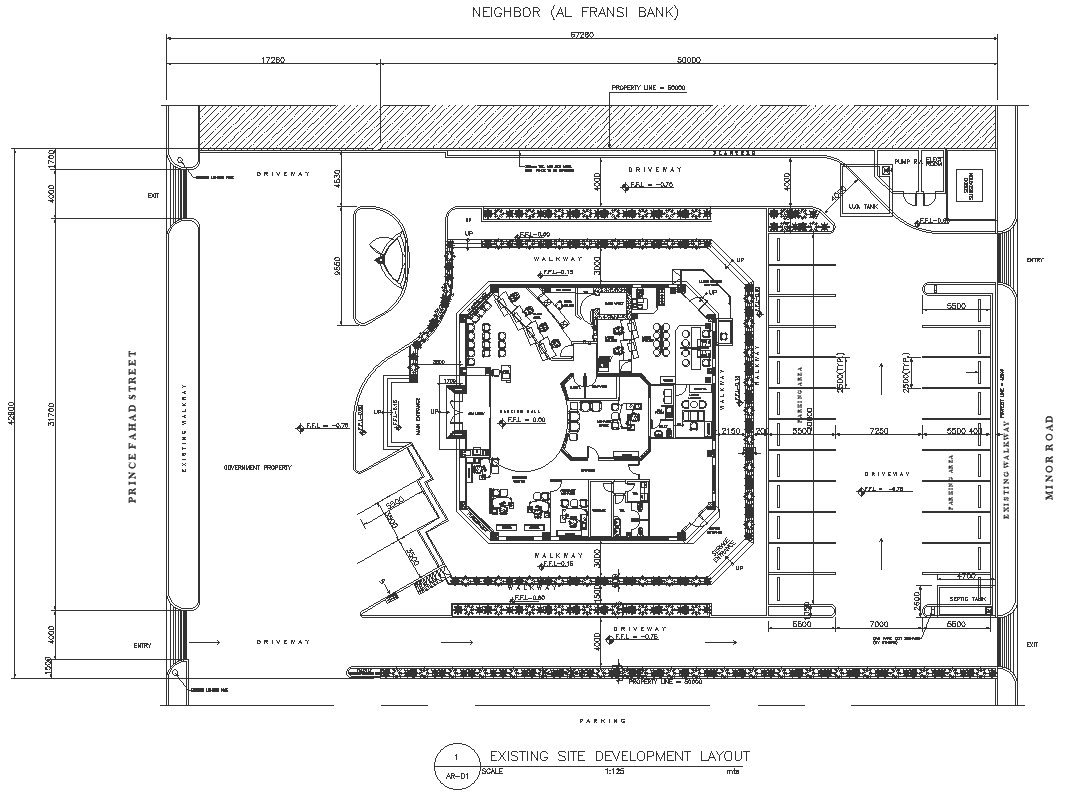
Explore the existing site development layout of Dubai's main roads with our meticulously crafted AutoCAD drawing, offering comprehensive details of the current landscape. Our DWG file provides an in-depth view of the existing site, complete with precise dimensions and essential design elements.Delve into the intricacies of Dubai's main roads as our CAD drawing captures the essence of the current layout, serving as a valuable reference for proposed developments and future planning. With specific focus on the main roads, our 2D drawing offers insights into the existing infrastructure and potential areas for improvement.Unlock the full potential of your site development projects with our CAD file, meticulously crafted to streamline the planning process and ensure accuracy in every aspect. With our detailed AutoCAD drawing, you'll have all the tools you need to visualize and refine your site development plans. Elevate your design aspirations with our comprehensive collection of DWG files, setting the stage for innovative and efficient urban development in Dubai.

Uploaded by:
Eiz
Luna

