8X10 ft kitchen design in one bhk house detailed plan DWG autoCAD drawing
Description
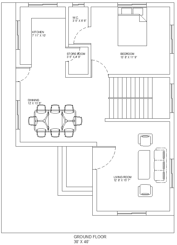
Discover a detailed 8x10 ft kitchen design within a one-bedroom house plan presented in our AutoCAD DWG drawing. This comprehensive file showcases an optimized kitchen layout with intricate details. Explore elevation and section views to grasp the efficient space planning and floor layout, considering essential elements like bedroom arrangements and staircase details. Uncover specific column details, section specifics, and façade designs to inspire your architectural vision. The drawing includes ceiling plans, interior design features, and construction details such as beam and column specifics, foundation plans, footing details, and reinforced concrete elements. This CAD file is a valuable resource for architects and designers, providing tools to enhance project efficiency and creativity. Access this AutoCAD drawing to visualize and optimize your one-bedroom house design, incorporating a well-planned kitchen layout for seamless living.
Uploaded by:

