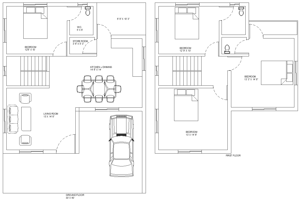
Two storey house plan with four bedroom detailed both floor plan DWG autoCAD drawing
Description
Explore a detailed AutoCAD drawing featuring a two-storey house plan with four bedrooms, showcasing comprehensive floor plans for both levels. This DWG file provides an in-depth look at the layout, including essential elements like bedroom configurations, kitchen details, staircase designs, and innovative features such as sandwich stairs. Dive into elevation and section views to understand the space planning and floor layout optimization. Uncover specific column details, section specifics, and façade designs to inspire your architectural vision. The drawing also includes ceiling plans, interior design features, and construction details like beam and column specifics, foundation plans, footing details, and reinforced concrete elements. This CAD file is an invaluable resource for architects and designers, offering tools to enhance project efficiency and creativity. Access this AutoCAD drawing to visualize and optimize your two-storey house design with detailed plans for a comfortable and functional living space.
Uploaded by:

