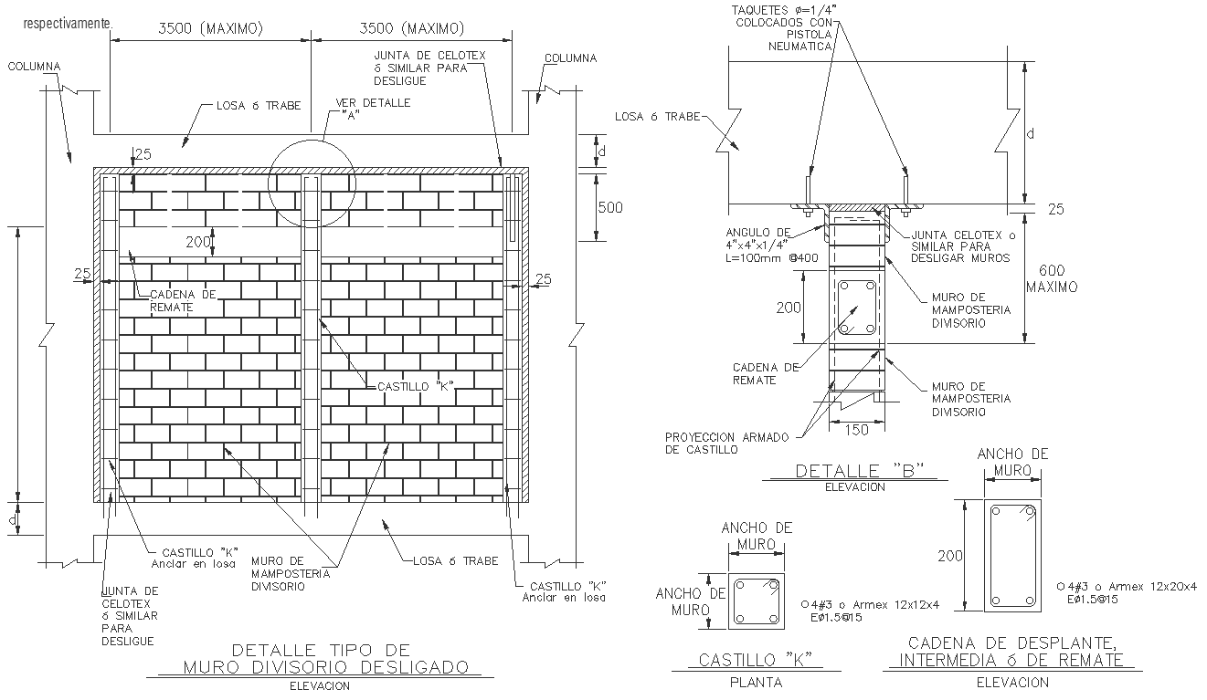
Detail of division wall plan section and elevation DWG autoCAD drawing
Description
Explore the detailed plan, section, and elevation of a division wall with our comprehensive AutoCAD DWG drawing. This file provides a thorough depiction of the division wall's design, layout, and structural elements, offering valuable insights for architects, designers, and construction professionals. Dive into the elevation and section views to examine the wall's framing, detailing, and spatial configuration within a residential or architectural context. This CAD drawing includes essential information for space planning, interior design, and construction, covering aspects such as wall framing, layout, and architectural detailing. Access this AutoCAD file to enrich your design resources and gain practical knowledge for incorporating division walls effectively into residential or commercial projects. Enhance your understanding of wall design and construction with this detailed division wall plan section and elevation drawing, ideal for architects and designers seeking comprehensive CAD resources for their projects. Download now to optimize your design and construction workflows with precise division wall details.
Uploaded by:

