Foundation plan with beam column detail DWG autoCAD drawing
Description
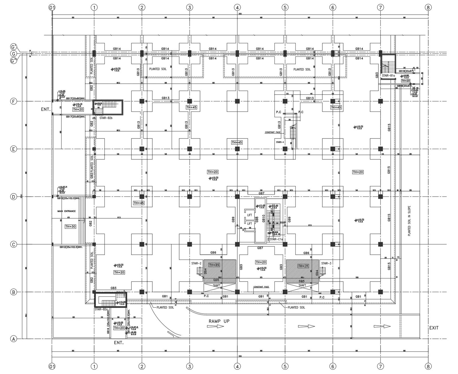
Discover a comprehensive AutoCAD DWG drawing featuring a detailed foundation plan with beam and column specifications, essential for architects, engineers, and construction professionals. This drawing provides critical insights into foundation design, showcasing beam and column details that are crucial for structural stability and integrity. Dive into this CAD drawing to explore precise construction joints, reinforcement techniques, and wall framing essential for residential and commercial projects. Gain valuable information on space planning, floor layout, and column detailing, enhancing your understanding of construction principles. Download this AutoCAD file to optimize your construction workflows and improve project efficiency. Access this resource to elevate your architectural and engineering designs with detailed foundation plans and optimized structural planning. Enhance your projects with comprehensive insights into construction details, ensuring robust foundations and reliable structural designs.
Uploaded by:

