General section details of the bathrooms construction system DWG autoCAD drawing
Description
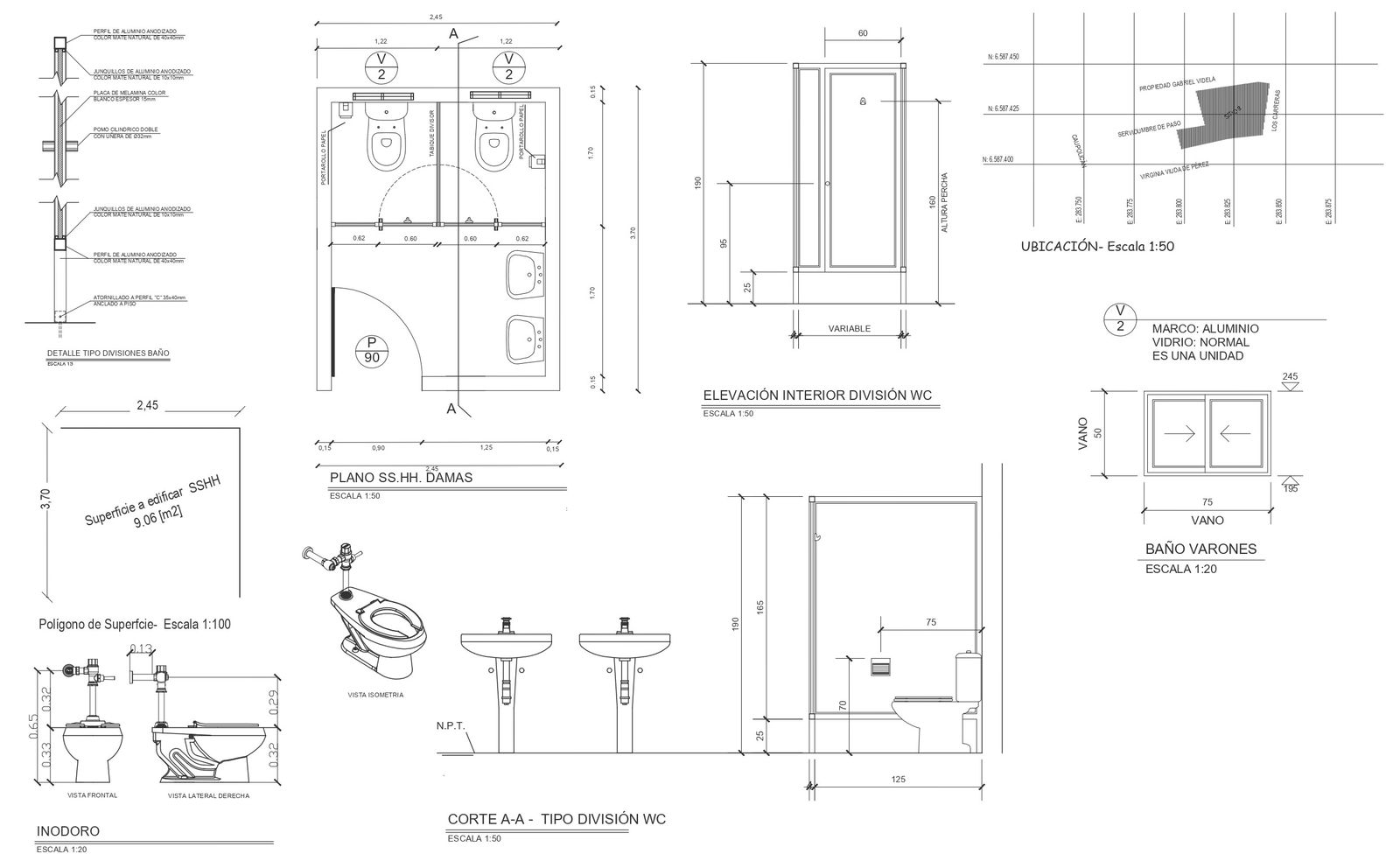
Explore detailed section specifications of bathroom construction systems through this comprehensive DWG AutoCAD drawing. Discover bathroom details, including toilet designs, washroom configurations, and roof structure specifics such as surface polygons, shed roof structures, and Virginia widow elements. Gain insights into lateral roof slopes and demarcation details within this architectural layout. The drawing also highlights division walls, wall designs, and electrical layouts essential for bathroom construction projects. Access detailed views of elevation and section plans, offering valuable information for space planning and interior design. This AutoCAD file is an invaluable resource for architects and engineers seeking to optimize bathroom construction, with detailed sections, column details, and foundation plans available for reference. Download this drawing to access a wealth of information on bathroom construction systems, ideal for professionals in architecture and construction.
Uploaded by:

