Influence of bridge deck damage on first order natural frequency of simply supported T-beam bridge DWG autoCAD drawing
Description
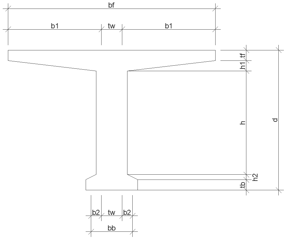
Explore the impact of bridge deck damage on the fundamental natural frequency of a simply supported T-beam bridge with this detailed AutoCAD DWG drawing. This analysis considers the structural integrity of T-beam bridges, focusing on cross-sections and construction joints critical to bridge design. Discover how damage affects the first-order natural frequency, a key parameter for bridge performance and safety. The drawing includes essential details like wall frames, electrical layouts, and interior design elements, providing comprehensive insights into bridge construction and architecture. With elevation and section views, this drawing aids in space planning, floor layouts, and column specifications. Download the CAD file to access 2D drawings for façade design, ceiling plans, and reinforcement details, vital for optimizing bridge construction. Enhance your understanding of T-beam bridge dynamics with this invaluable resource for engineers and architects.
Uploaded by:

