Typical floor plan of five storey apartment detailed DWG autoCAD drawing
Description
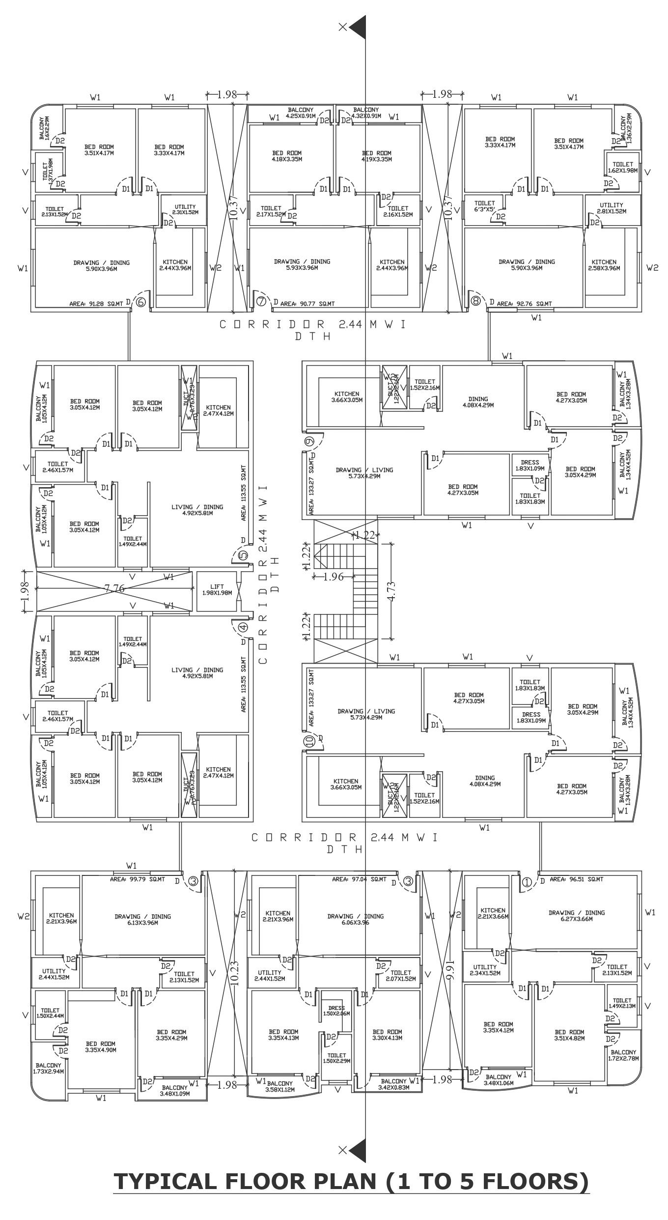
Explore the detailed typical floor plan of a five-storey apartment with our comprehensive AutoCAD drawing in DWG format. This drawing showcases a strategic layout for a typical apartment floor, incorporating bedroom designs, kitchen layouts, and intricate staircase details including innovative designs like the sandwich stair configuration. Dive into the specifics of column details, section layouts, and architectural elements such as facade designs and ceiling plans, all meticulously crafted to optimize space planning and functionality. This CAD file serves as an invaluable resource for architects and designers, offering insights into construction details including beams, foundations, and reinforcement. Whether you're refining existing plans or embarking on a new project, leverage this digital blueprint to enhance your understanding of apartment design and construction. Unlock the potential of your architectural vision with this detailed drawing, tailored for precision and efficiency in apartment planning and layout.
Uploaded by:

