Government offices detailed beam column plan DWG autoCAD drawing
Description
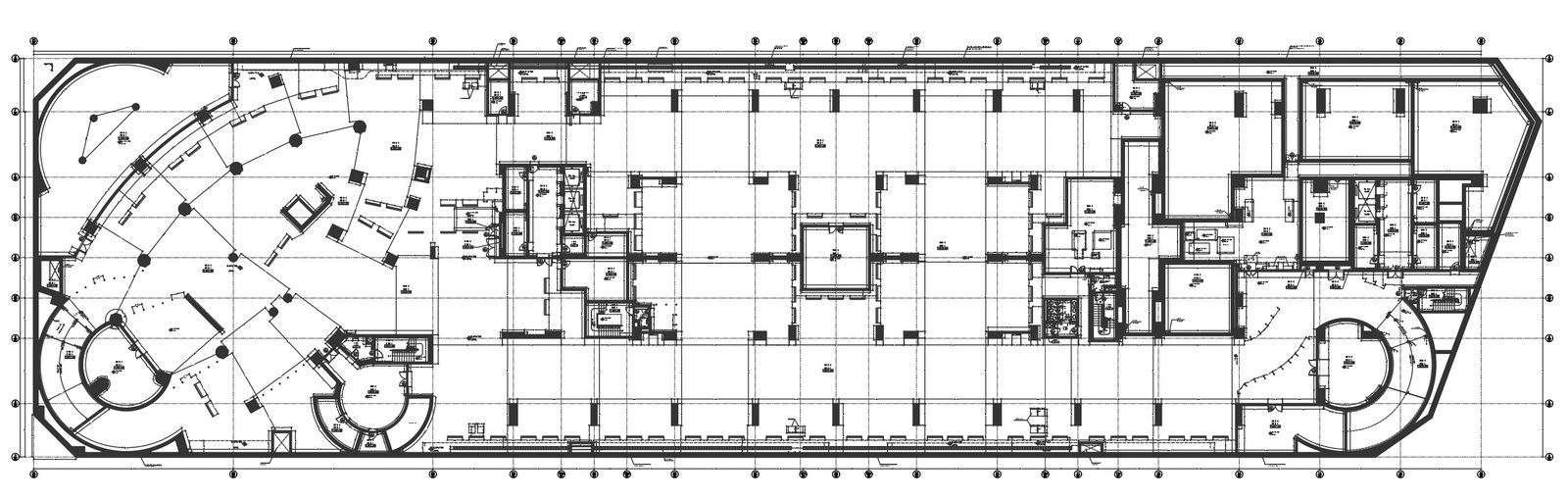
Explore the detailed beam and column plan for government offices with our comprehensive AutoCAD drawing in DWG format. This drawing provides a strategic layout for office spaces within a government building, emphasizing efficient workspaces and ergonomic office furniture design. Dive into the specifics of column details, section layouts, and architectural elements such as facade designs and ceiling plans, tailored for government office requirements. This CAD file serves as a valuable resource for architects and designers, offering insights into construction details including beams, foundations, and reinforcement specific to office environments. Whether you're refining existing plans or designing a new government office space, leverage this digital blueprint to enhance your understanding of office design and construction. Unlock the potential of your architectural vision with this detailed drawing, ideal for precision and efficiency in government office planning and layout.
Uploaded by:

