Alternative fuel line layout proposal plan DWG autoCAD drawing
Description
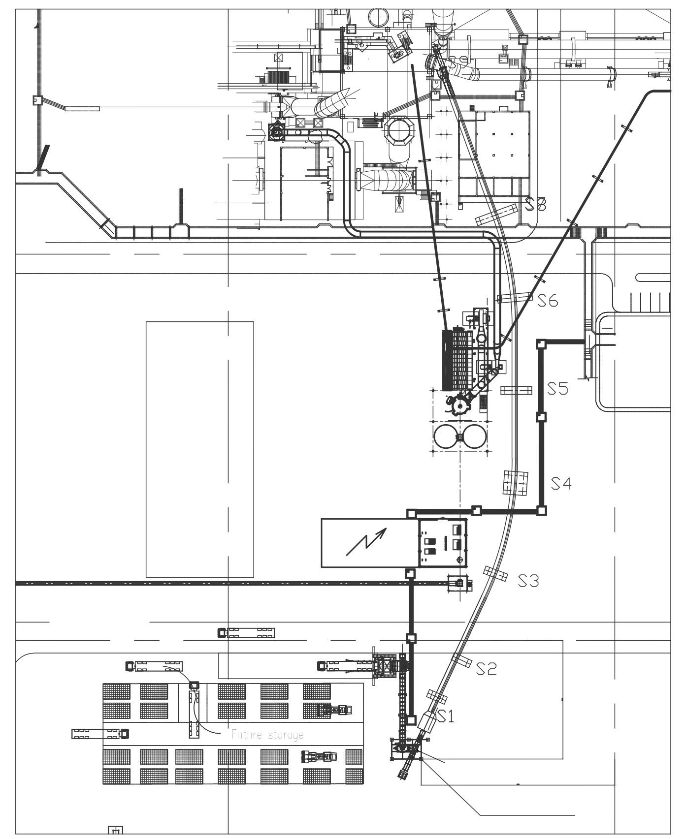
Explore a comprehensive proposal for an alternative fuel line layout with our detailed AutoCAD drawing in DWG format. This drawing presents a strategic plan for the layout of fuel lines, emphasizing efficient pipe conveyance and distribution within a fuel station or petrol pump setting. Discover the architectural and construction details, including elevation views, section details, and 3D renderings to visualize the proposed layout. Emphasizing space planning and practicality, this CAD file serves as a valuable resource for architects and engineers seeking insights into construction, footing details, and architectural specifications specific to alternative fuel line layouts. Whether refining existing plans or proposing a new fuel distribution system, leverage this digital blueprint to enhance efficiency and sustainability in fueling operations. Unlock the potential of your fuel line layout with this detailed drawing, optimized for precision and functionality in alternative fuel distribution.
File Type:
DWG
File Size:
12.2 MB
Category::
Mechanical and Machinery
Sub Category::
Factory Machinery
type:
Gold
Uploaded by:

