Section detail of luxurious bungalow with all leveling detail DWG autoCAD drawing
Description
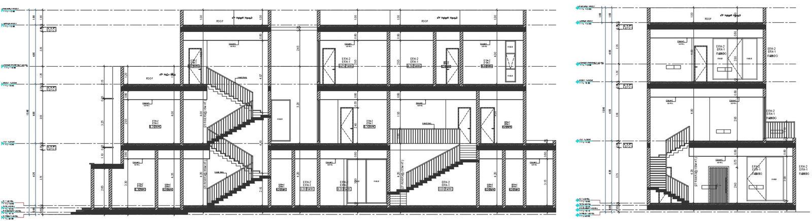
Explore the intricate section detail of a luxurious bungalow, complete with comprehensive leveling specifications, in our detailed AutoCAD DWG drawing. This blueprint reveals the structural elegance and precision of the bungalow, highlighting detailed section views that showcase every aspect of the building's design and construction. Dive into the leveling details, emphasizing the strategic placement of each component to ensure optimal functionality and architectural integrity. Discover how space planning and layout considerations are seamlessly integrated within the property, incorporating bedroom configurations, kitchen intricacies, and staircase embellishments. This CAD file serves as an invaluable resource for architects and designers, offering insights into urban and society development through a sophisticated home plan lens. Whether refining existing plans or conceptualizing a new villa design, leverage this digital blueprint to elevate your residential project with tailored excellence and precision. Unlock the potential of upscale living with this detailed drawing, optimized for architectural finesse and practicality.
Uploaded by:

