Art school design with furniture detail in studio and extra halls DWG autoCAD drawing
Description
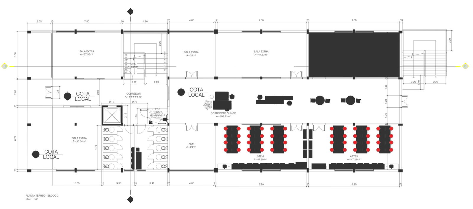
Explore the comprehensive L-shaped school design featuring classrooms, laboratories, and an indoor play area in our detailed AutoCAD DWG drawing. This blueprint highlights the functional and innovative layout of the educational building, optimized for learning and development. Dive into the design details, showcasing the arrangement of classrooms for academic activities, laboratories for scientific exploration, and an indoor play area for physical recreation and growth. Discover how the space planning ensures efficient flow and utilization of the school's facilities, integrating study spaces, communal areas, and specialized zones to cater to diverse educational needs. This CAD file serves as a valuable resource for architects and urban planners, offering insights into educational building design and society development. Whether refining existing plans or conceptualizing a new school project, leverage this digital blueprint to enhance your educational design with precision and practicality. Unlock the potential of educational architecture with this detailed drawing, optimized for functionality and educational excellence.
Uploaded by:

