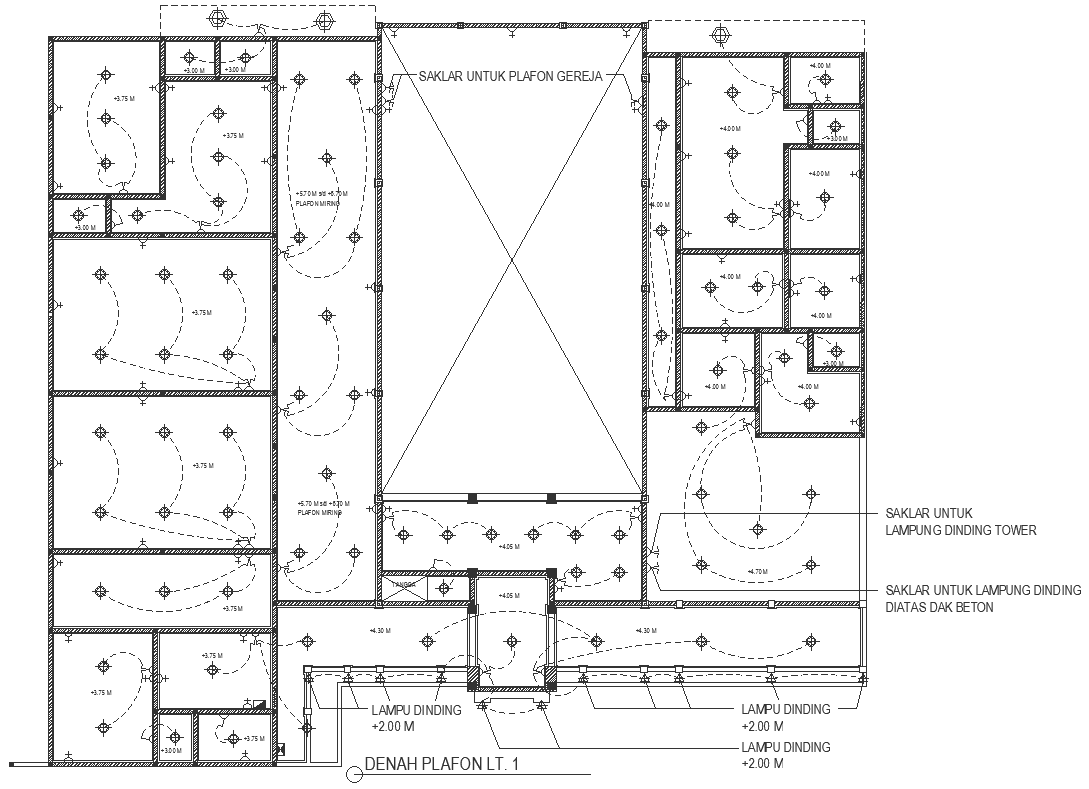
Floor ceiling plan of church with switchboard detail DWG AutoCAD drawing
Description
Explore the comprehensive floor and ceiling plan of the church, featuring detailed switchboard specifications, in our AutoCAD DWG drawing. This blueprint highlights the architectural design and layout of the church's interior, emphasizing the integration of switchboards for electrical distribution and control. Dive into the floor and ceiling plans, revealing the spatial organization, structural elements, and switchboard locations that optimize functionality and safety within the church. Discover how the design integrates with the overall church architecture, enhancing both aesthetic appeal and practicality. This CAD file serves as a valuable resource for architects and designers, providing insights into electrical planning and interior design within religious buildings. Whether refining existing plans or conceptualizing new designs, leverage this digital blueprint to enhance your architectural project with precision and technical excellence. Unlock the potential of architectural innovation with this detailed drawing, optimized for efficiency and reliability.
Uploaded by:

