Septic tank detailed plan and sections with details of control tub cover and tub lid DWG AutoCAD drawing
Description
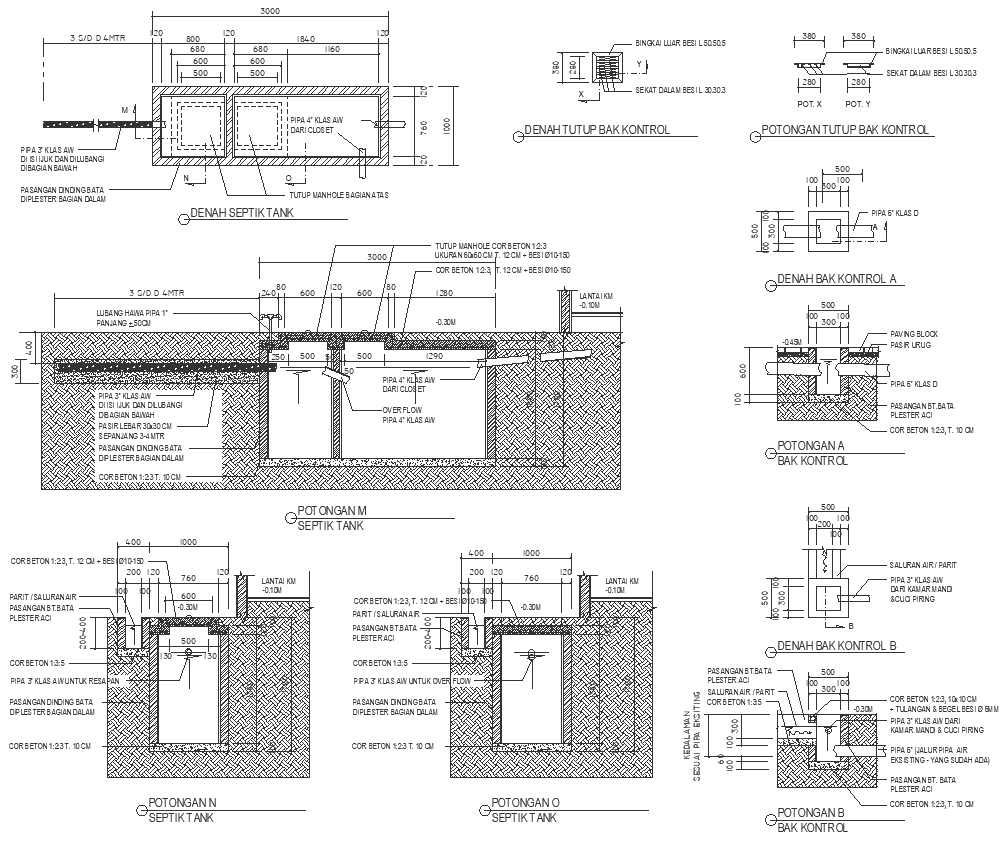
Explore the detailed plan and sections of a septic tank, including specifications for the control tub cover and lid, in our AutoCAD DWG drawing. This comprehensive blueprint showcases the plumbing design and layout of the septic system, emphasizing the functionality and construction details of the tank and associated components. Dive into the plan and sections, revealing the placement, dimensions, and materials of the septic tank, control tub cover, and lid. Explore how the design integrates with the overall plumbing system, optimizing efficiency and durability. This CAD file serves as a valuable resource for architects and designers, providing insights into septic tank design and construction for residential properties. Whether refining existing plans or conceptualizing new designs, leverage this digital blueprint to enhance your architectural project with precision and practicality. Unlock the potential of functional plumbing design with this detailed drawing, optimized for efficiency and reliability.
Uploaded by:

