Church design with furniture layout DWG AutoCAD drawing
Description
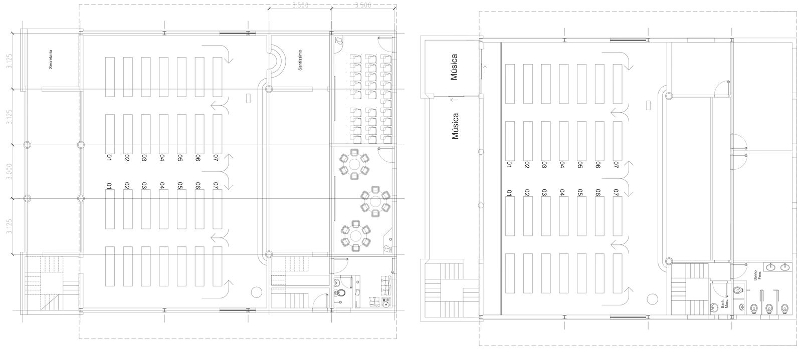
Explore the intricate details of our Church Design with Furniture Layout DWG AutoCAD drawing, embodying the elegance and grandeur of cathedral architecture. This blueprint captures the essence of cathedrals and Gothic-inspired structures, ideal for architects and enthusiasts. Dive into the plot detail and site analysis embedded in this drawing, highlighting furniture placement, elevation, and spatial considerations. Uncover the nuanced sections and column details essential for structural integrity and design cohesion. Delve into the artistry of facade design, complemented by urban design principles defining iconic churches' character. Discover the foundation plan and footing detail crucial for sturdy concrete construction, harmonizing with temple architecture elements such as vaulting and bell towers. Elevate your understanding of architectural design with this comprehensive resource, a testament to creative excellence and meticulous craftsmanship in church design.
Uploaded by:

