Villa’s setout plan with column layout detail DWG AutoCAD file
Description
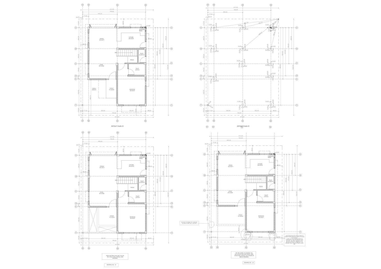
Discover the meticulously planned setout and column layout for a villa in this comprehensive DWG AutoCAD file. This architectural blueprint reveals the strategic organization of spaces, emphasizing bedrooms, kitchens, and living areas to optimize both function and aesthetics within the villa's structure. The column layout includes a detailed foundation plan, highlighting essential elements such as footing dimensions, concrete construction, and reinforcement details. Explore this detailed file to gain insights into space planning, architectural design, and construction techniques for villa projects. Ideal for architects, designers, and construction professionals, this plan offers a practical guide to villa layout and design, ensuring precision and efficiency in the construction process.
Uploaded by:

