Basement parking design detailed staircase and slop DWG AutoCAD drawing
Description
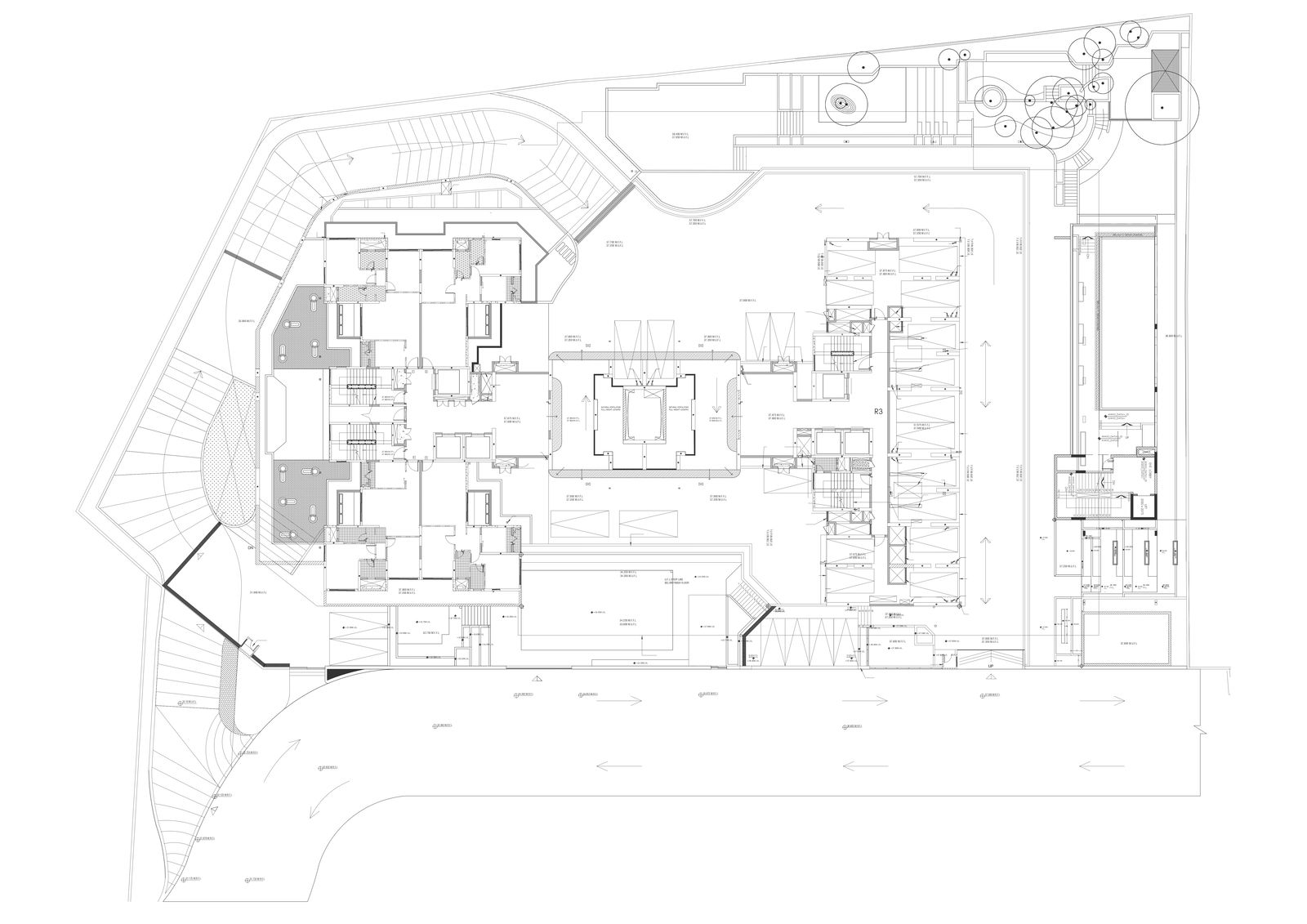
Discover the intricacies of basement parking design through detailed staircases and slopes in this comprehensive AutoCAD drawing. Explore how plot details, site analysis, furniture arrangements, elevation, and sections combine to optimize space and accessibility. This drawing showcases meticulous space planning, efficient floor layouts, and precise column details, essential for creating functional and well-organized basement parking structures. The inclusion of staircase and slope details ensures safe and convenient access, highlighting key considerations in architecture and urban design. Ideal for architects, engineers, and designers, this AutoCAD drawing offers valuable insights into designing basement parking areas with a focus on practicality and efficiency.
Uploaded by:

