Commercial building elevation and section DWG AutoCAD file
Description
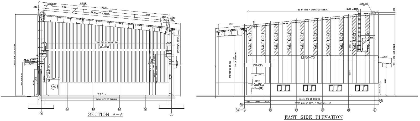
Discover comprehensive AutoCAD DWG files for commercial building elevation and section details. Our drawings include plot details, elevations, and section views, providing valuable insights for architects and designers. Explore detailed floor layouts, column specifications, and precise section details within our CAD files. Enhance your architectural projects with optimized 2D drawings tailored for structural planning and design. Access ready-to-use CAD resources to streamline your building design process and optimize space utilization. Dive into our collection of DWG files, ideal for professionals seeking detailed architectural elements and floor plan enhancements. Elevate your design workflow with specialized CAD drawings for commercial building projects. Unlock the potential of AutoCAD files for efficient building elevation and section planning.
Uploaded by:

