Setout layout plan of double storey 3 BHK house DWG AutoCAD drawing
Description
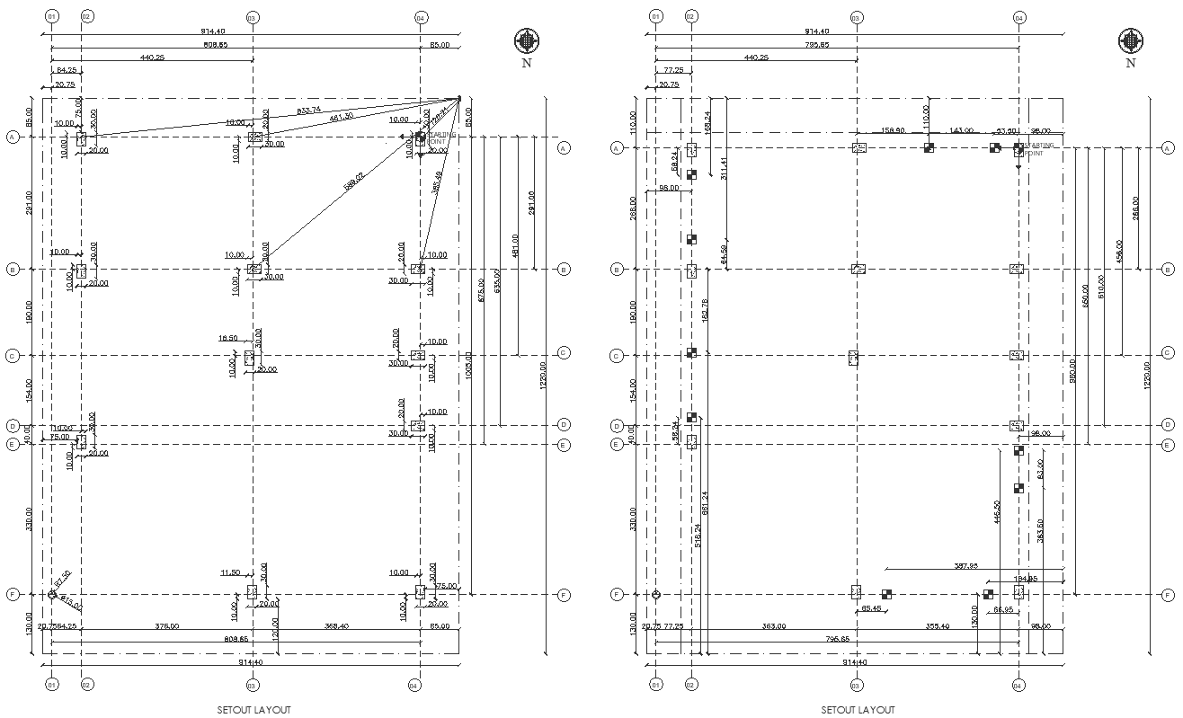
Explore the precise setout layout plan for a double-storey 3 BHK house with this detailed AutoCAD drawing. This plan encapsulates strategic plot details, furniture arrangement, and space allocation to optimize every corner of the residence. Ideal for architects, designers, or homeowners, this drawing provides valuable insights into site analysis, elevation views, and section details, facilitating comprehensive design and construction planning. Unlock the potential of urban development and residential design with this resourceful layout plan, featuring meticulous floor layout, bedroom configurations, kitchen details, staircase placements, and façade designs. Dive into the world of modern architecture and urban living through this comprehensive AutoCAD drawing, perfect for those seeking inspiration or practical guidance in house design and construction.
Uploaded by:

