Reinforcement detail and floor plan with structure section detail DWG AutoCAD drawing
Description
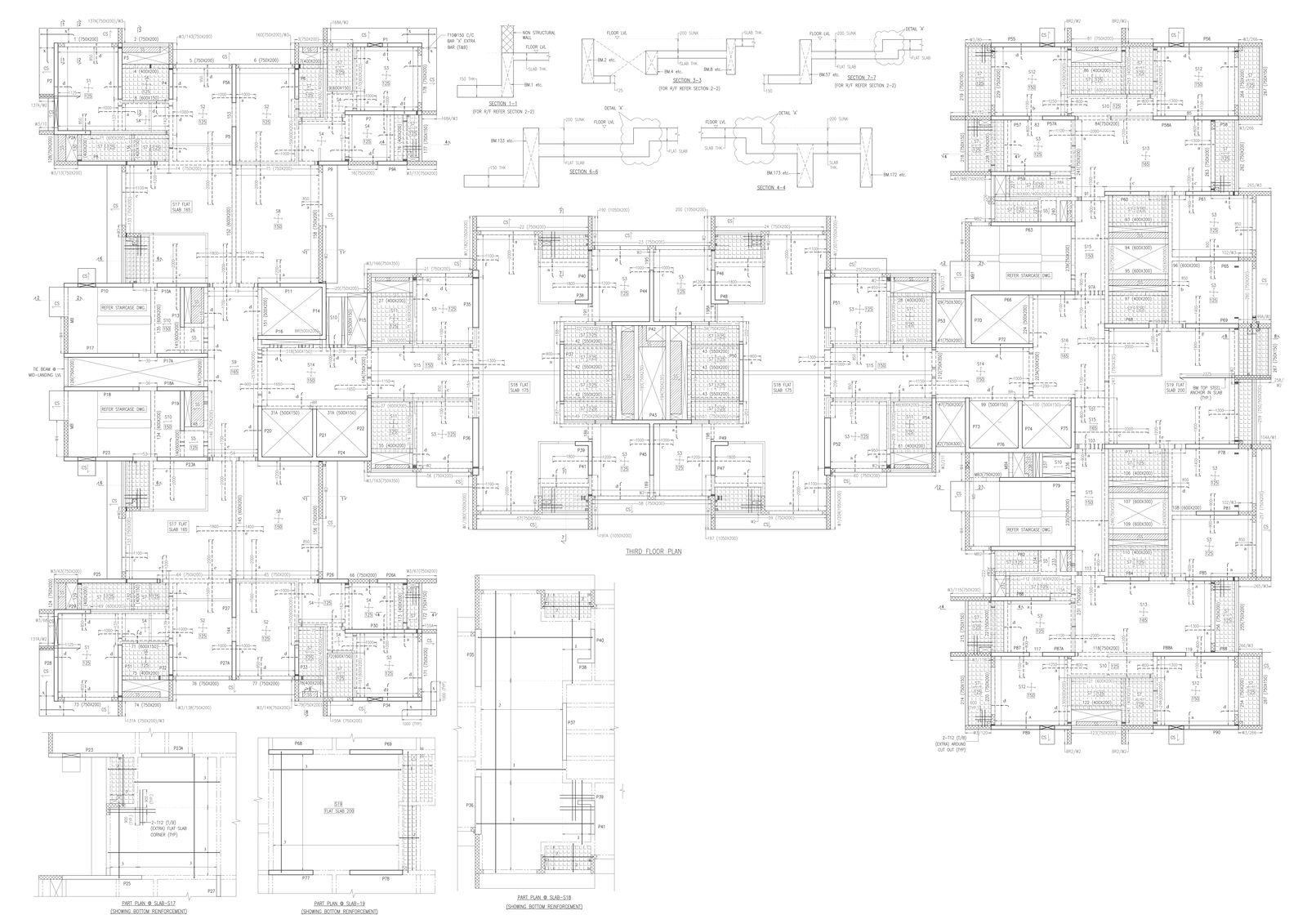
Explore detailed reinforcement and structural floor plan sections in this comprehensive DWG AutoCAD drawing. This resource provides valuable insights for architects and engineers, showcasing reinforcement details alongside structural section plans. Gain crucial information on furniture placement, elevation views, and section details to optimize space planning and floor layouts. This drawing integrates key elements such as bedroom configurations, kitchen layouts, and staircase designs to support architects and designers in creating functional and aesthetically pleasing structures. Enhance your understanding of structure design, construction details, and concrete construction techniques with this CAD-ready resource. Compatible with AutoCAD software, this drawing facilitates seamless integration into your project workflow.
File Type:
DWG
File Size:
1.2 MB
Category::
Construction
Sub Category::
Concrete And Reinforced Concrete Details
type:
Gold
Uploaded by:

