Industrial plant design detailed plan DWG AutoCAD drawing
Description
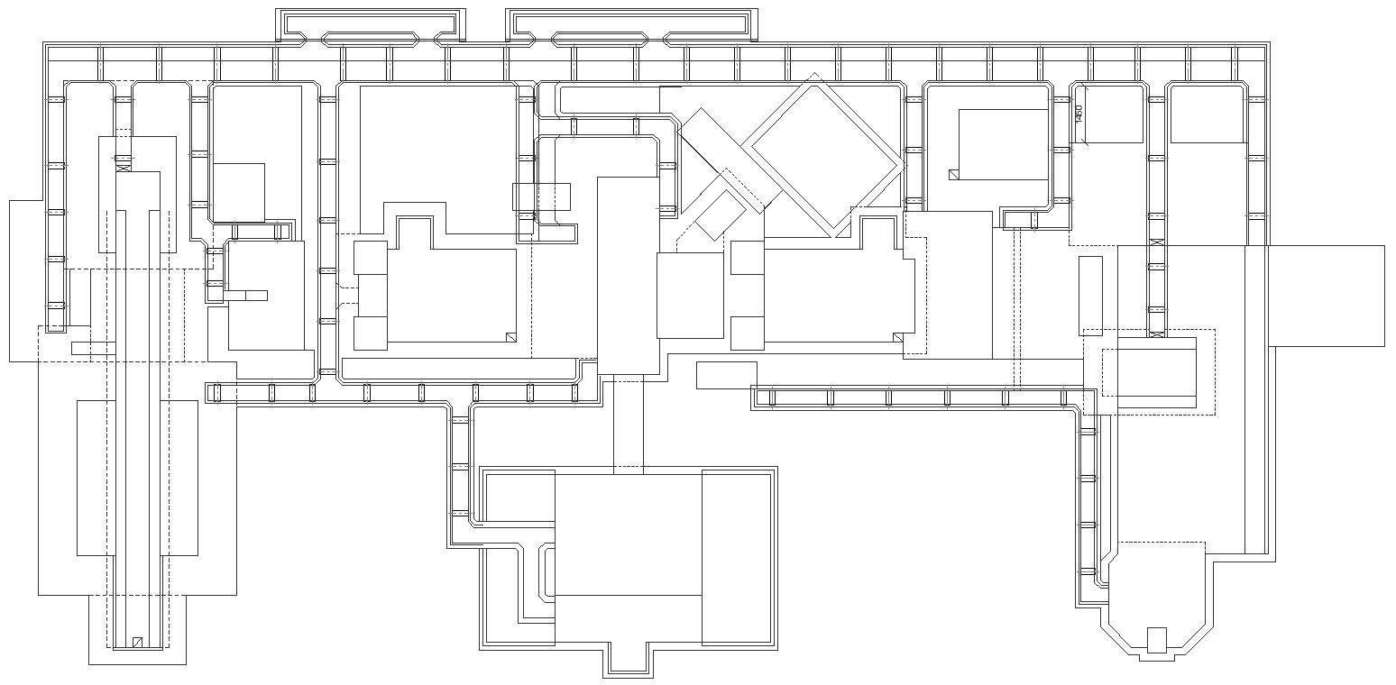
Discover the comprehensive industrial plant design detailed in this DWG AutoCAD drawing. This plan includes precise structure details, furniture arrangements, elevation views, and sections, ensuring optimal space planning and efficient floor layouts. The drawing highlights column details and section specifics, contributing to effective facade design and overall architectural detailing. Ideal for concrete construction projects, this resource supports accurate design and implementation, catering to industrial requirements. With detailed annotations and meticulous planning, this drawing aids architects, engineers, and builders in visualizing and executing industrial plant layouts seamlessly. Whether you're planning a new industrial facility or enhancing an existing one, this AutoCAD drawing provides essential insights and precise guidelines.
Uploaded by:
