Factory building front elevation detail DWG AutoCAD drawing
Description
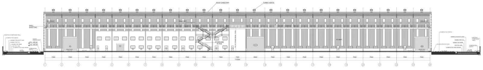
Explore the detailed front elevation of a factory building in this DWG AutoCAD drawing. This comprehensive design showcases the industrial plant’s facade with intricate structure details and architectural elements. It includes furniture details, sectional views, and efficient space planning, ensuring a practical and aesthetically pleasing layout. The drawing highlights floor layout specifics, column details, and sectional intricacies, essential for concrete construction projects. Ideal for architects, engineers, and construction professionals, this DWG file provides precise guidelines and visual insights to facilitate accurate implementation. The detailed elevation ensures a clear understanding of the factory's front view, contributing to effective design and construction processes.
Uploaded by:

