Detail layout plan of warehouse DWG AutoCAD drawing
Description
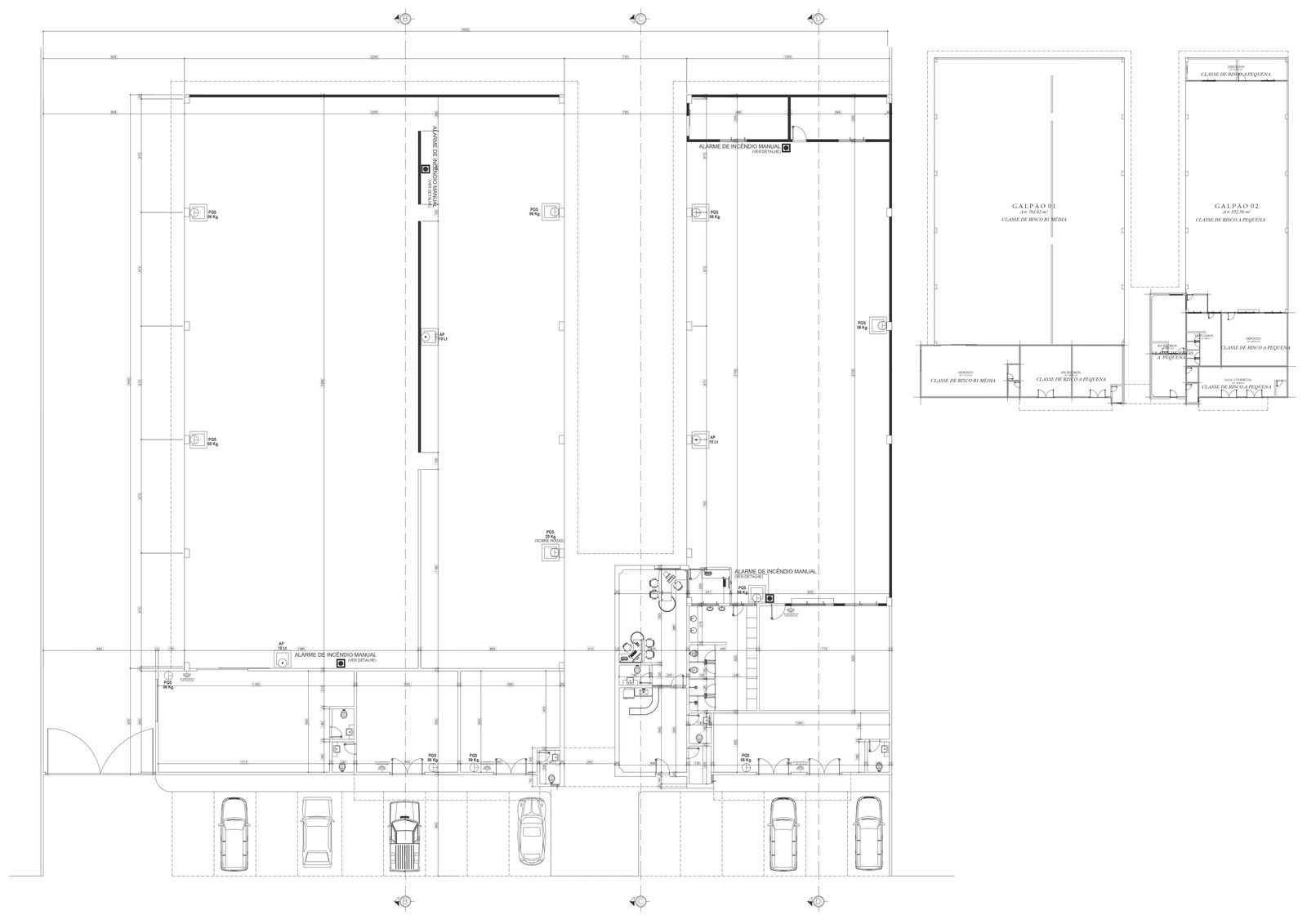
Discover the comprehensive detailed layout plan of a warehouse with our DWG AutoCAD drawing. This file provides an in-depth warehouse layout, including parking details, wall details, and plot details, making it an essential tool for architects and planners. Conduct thorough site analysis and enhance your space planning with precise furniture details and elevation views. The layout plan covers all aspects of architectural design, ensuring you have the necessary information to create efficient and functional warehouse spaces. Whether you are working on the overall architecture detail or focusing on specific design elements, this DWG file is a valuable resource. Compatible with AutoCAD, this CAD drawing can be easily customized to fit your project requirements. Download the detailed warehouse layout plan DWG file now to access accurate and reliable design information, elevating your architectural and engineering projects with ease and precision.
Uploaded by:

