Water Treatment Plant Plumbing Pipe Layout CAD DWG Design
Description
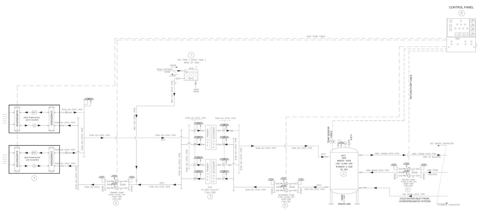
Discover a comprehensive Plumbing Line Pipe Detail Layout for Water Treatment Plant in a DWG AutoCAD file. This expertly designed CAD file features intricate pipe details and precise plumbing layouts essential for any water treatment plant. Ideal for professionals in plumbing and engineering, this 2D drawing provides detailed insights into pipe materials, plumbing lines, and plumbing details, ensuring efficient raw water filtration and domestic use of water. Enhance your project's accuracy with this meticulously crafted CAD drawing, perfect for designing robust and effective water treatment systems. Access this essential resource today to streamline your water treatment plant's plumbing layout and pipe detailing needs
File Type:
3d max
File Size:
1005 KB
Category::
Urban Design
Sub Category::
Town Water Treatment Design
type:
Gold
Uploaded by:
