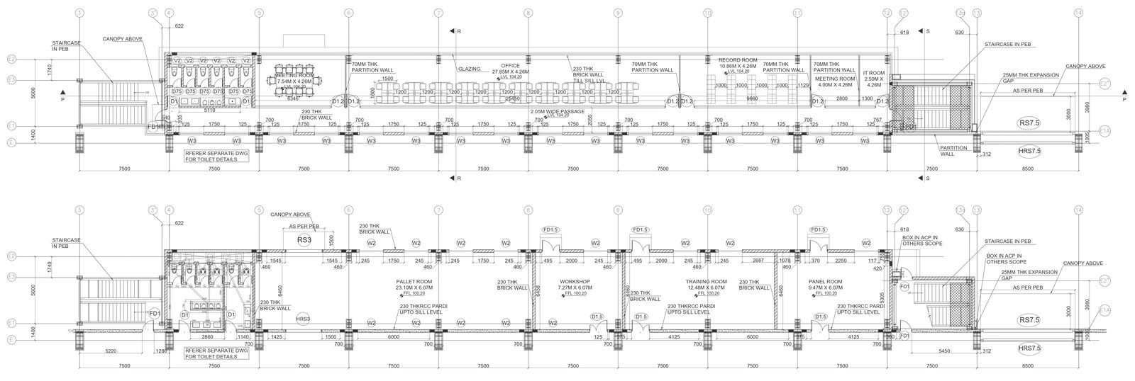
Plan of Dress changing room for men and women and server room detail DWG AutoCAD file
Description
Looking for a comprehensive plan for a changing room for men and women, along with a detailed server room layout? Our DWG AutoCAD file provides an expertly designed solution. This CAD file includes precise details for changing rooms, ensuring optimal space utilization and privacy. The 2D drawing is meticulously crafted to meet all your requirements, from layout to infrastructure. Our changing room plan is ideal for architects and designers seeking accurate CAD drawings. The DWG file format ensures compatibility and ease of use in various design applications. The server room detail within the same file offers a streamlined approach to integrating critical technical spaces. With our AutoCAD files, you gain access to professional-grade plans that are essential for efficient and effective design projects. Download our DWG file today to elevate your project with precise and reliable detail for changing rooms and server rooms.
File Type:
DWG
File Size:
3.9 MB
Category::
Interior Design
Sub Category::
Showroom & Shop Interior
type:
Gold
Uploaded by:

