Hoistway plan with beam detail DXF AutoCAD drawing
Description
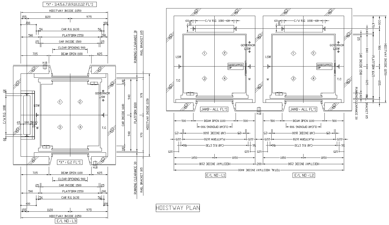
Introducing our Hoistway Plan with Beam Detail DXF AutoCAD drawing, an essential resource for architects, designers, and engineers. This comprehensive drawing provides detailed insights into the hoistway layout, including beam specifications and architectural details. Perfect for site analysis, space planning, and urban design projects, this drawing offers valuable information for plot details, elevation, and section views. Whether you're designing a residential bungalow, a villa, or a multi-story building, our DWG file provides the precision and clarity needed for effective floor layout and column placement. With meticulous attention to detail, including furniture layout and facade design, this drawing is indispensable for society development and house planning. Enhance your architectural projects with our Hoistway Plan with Beam Detail CAD drawing, and streamline your design process with accurate and comprehensive information.
Uploaded by:

