Entrance elevation and structural opening detail DXF AutoCAD drawing
Description
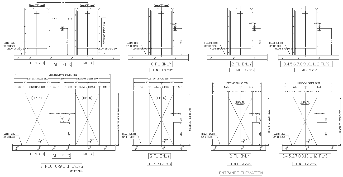
Introducing our Entrance Elevation and Structural Opening Detail DXF AutoCAD drawing, a vital resource for architects, engineers, and designers. This comprehensive drawing offers detailed insights into the elevation of the entrance area, along with specifications for structural openings and furniture placement. Perfect for space planning, floor layouts, and urban design projects, this drawing provides valuable information for section views and facade design. Whether you're designing a residential house plan, bungalow, or villa, our DWG file delivers the precision needed for column details and architectural elements. With meticulous attention to detail, including floor layouts and space planning considerations, this drawing is indispensable for society development and home planning. Enhance your architectural projects with our Entrance Elevation and Structural Opening Detail CAD drawing, and simplify your design process with accurate and comprehensive information.
File Type:
DXF
File Size:
91 KB
Category::
Construction
Sub Category::
Construction Detail Drawings
type:
Gold
Uploaded by:

