Saddle sliding and fixed support detail DWG AutoCAD file
Description
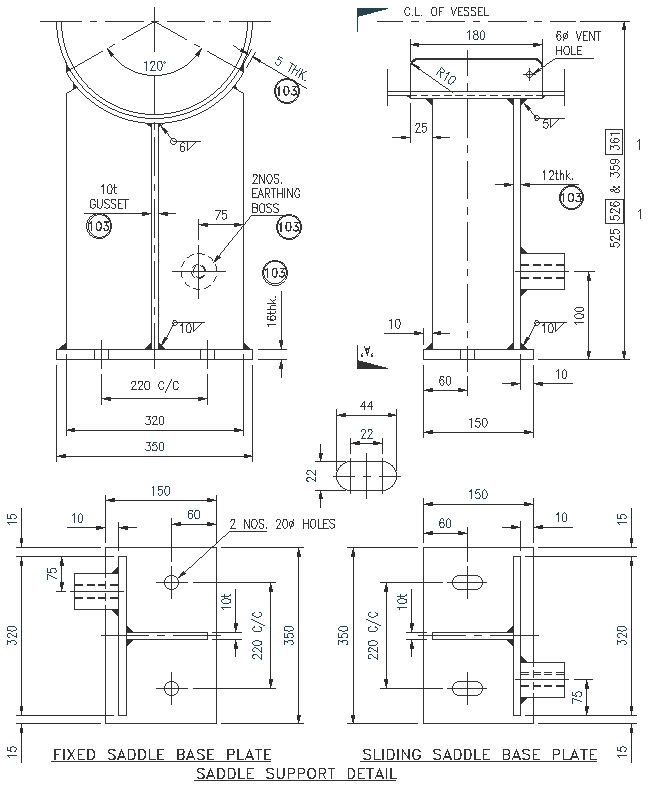
Discover a comprehensive Saddle Sliding and Fixed Support Detail DWG AutoCAD file that offers detailed insights into saddle supports. This high-quality CAD file provides precise sections with dimension details for both sliding and fixed supports, ensuring accurate and efficient design implementation. Ideal for engineers and designers, this 2D drawing in DWG format serves as an essential resource for your project needs. The file showcases meticulous dimensions and structural details, making it a valuable addition to your AutoCAD library. Enhance your design workflow with this detailed CAD drawing, perfect for anyone seeking reliable and detailed saddle support information. Download this DWG file now and streamline your project with precise, well-documented support details.
File Type:
DWG
File Size:
373 KB
Category::
Mechanical and Machinery
Sub Category::
Mechanical Engineering
type:
Gold

Uploaded by:
Eiz
Luna

