LOGIN
HOME
CATEGORIES
UPLOAD FILE
PRICING
HOUSE PLAN
ABOUT US
CONTACT US
Wooden door detail view dwg file
Home
Categories
Dwg Cad Blocks
Furniture Cad Blocks
Wooden door detail view dwg file
Uploaded by:
Chirag
View Profile
View Profile
Description
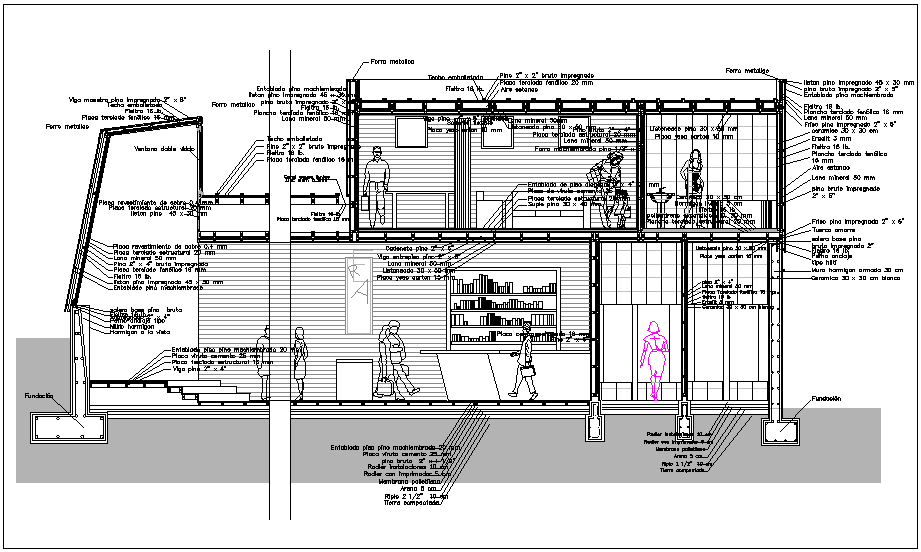
Wooden door detail view dwg file with view of different furniture detail view.
File Type:
DWG
File Size:
399 KB
Category::
Dwg Cad Blocks
Sub Category::
Furniture Cad Blocks
type:
Free
Uploaded by:
Chirag
View Profile
Download
Add to libary
find Latest
Related
Files