Public toilet elevation and interior detail DWG AutoCAD file
Description
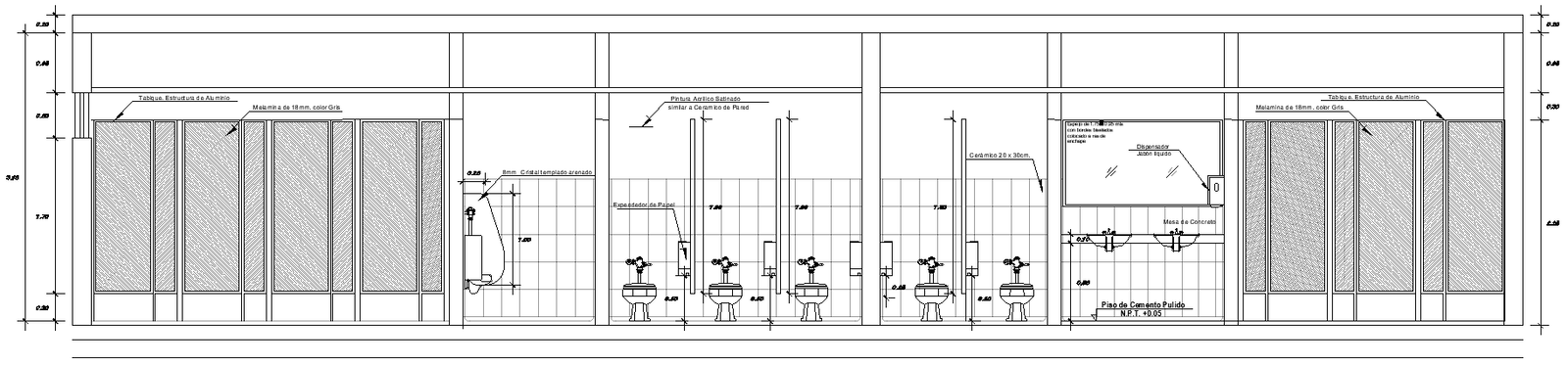
Looking for a comprehensive DWG AutoCAD file featuring detailed elevations and interior layouts of public toilets? This expertly crafted CAD drawing includes precise 2D designs, making it an essential resource for architects, engineers, and designers. The file encompasses every aspect of public toilet planning, from elevations to intricate interior details, ensuring accuracy and efficiency in your projects. Our DWG file format guarantees compatibility with various CAD software, allowing for seamless integration into your existing workflows. Whether you're developing new facilities or renovating existing ones, this CAD file provides the detailed information you need. Enhance your project with this meticulously detailed DWG AutoCAD file today.

Uploaded by:
Eiz
Luna

