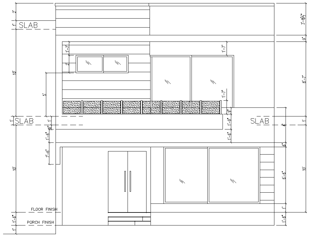
Front Elevation of G+1 house with slab Detail DWG AutoCAD file
Description
Discover the detailed Front Elevation of a Ground plus One (G+1) house, complete with slab details, available as a precise DWG AutoCAD file. This architectural drawing showcases the exterior facade of the building, highlighting design elements and structural features essential for construction planning and visualization. Access this comprehensive resource to examine dimensions, material specifications, and architectural nuances in a 2D format. Whether you're an architect, engineer, or designer, this DWG file offers valuable insights into spatial layout and elevation aesthetics. Explore the intricacies of building design with our CAD files, providing accurate representations that aid in project development and coordination. Download now to leverage the convenience and accuracy of digital drawings for your next construction or renovation project.

Uploaded by:
Eiz
Luna

